Elected Officials
Courts
Departments
Initiatives
Open Government
About
Login / Register
Home
/
Property & Tax Records
/
Property Records
/
Property & Tax Search
/
Parcel Profile
/
Print View
Search for Another Parcel
Parcel Profile
Historical Card
Sketches
Photos
Tax Map
Taxes
Print View
Print This Page
Address: 690 UNION ST
Parcel: 08045127004300
Parcel Profile
Address
690 | UNION | ST
Street Status
PAVED
School District
CORRY AREA SCHOOL
Acreage
8.9790
Classification
R
Land Use Code
SINGLE FAMILY
Legal Description
690 UNION ST TR 67 8.979 AC
Square Feet
1809
Topo
LEVEL | ROLLING
Utility
ALL PUBLIC
Zoning
Please contact your municipal zoning officer
Deed Book
1507
Deed Page
0436
2025 Tax Values
Land Value / Taxable
14,400 / 14,400.00
Building Value / Taxable
44,190 / 44,190.00
Total Value / Taxable
58,590 / 58,590.00
Clean & Green
Inactive
Homestead Status
Active
Farmstead Status
Inactive
Lerta Amount
0
Lerta Expiration Year
0
Residential Data
Card 1
Style
BUNGALOW
Basement
PART
Year Built
1900
Exterior Wall
ALUMINUM/VINYL
Total Living Area
1809
Full Baths
1
Half Baths
0
Fuel Type
GAS
Heating
CENTRAL
Heating System
FORCED AIR
Stories
1.0
Total Bedrooms
3
Total Family Rooms
1
Total Rooms
7
Fireplaces
0
Other Buildings & Yards
No OBY Data Found
Sales History
Sale Date
Type
Price
Book / Page
Other Info
8/31/1983
0
1507 / 0436
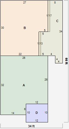
Parcel Sketches
Residential Card 1
A
MAIN
760 square feet
B
UNFIN BSMT BASEMENT UNFINISHED 1S FR ONE STORY FRAME
745 square feet
C
MA_PT CONC/MAS PATIO
321 square feet
D
OFP OPEN FRAME PORCH
120 square feet
Parcel Images