Elected Officials
Courts
Departments
Initiatives
Open Government
About
Login / Register
Home
/
Property & Tax Records
/
Property Records
/
Property & Tax Search
/
Parcel Profile
/
Print View
Search for Another Parcel
Parcel Profile
Historical Card
Sketches
Photos
Tax Map
Taxes
Print View
Print This Page
Address: 9904 BATEMAN AVE
Parcel: 09001001001400
Parcel Profile
Address
9904 | BATEMAN | AVE
Street Status
PAVED | SIDEWALK
School District
NORTHWESTERN SCHOOL
Acreage
0.4394
Classification
R
Land Use Code
SINGLE FAMILY
Legal Description
9904 BATEMAN AVE 116 X 165
Square Feet
1264
Topo
LEVEL
Utility
ALL PUBLIC
Zoning
Please contact your municipal zoning officer
Deed Book
2022
Deed Page
023591
2026 Tax Values
Land Value / Taxable
12,600 / 12,600.00
Building Value / Taxable
61,550 / 61,550.00
Total Value / Taxable
74,150 / 74,150.00
Clean & Green
Inactive
Homestead Status
Active
Farmstead Status
Inactive
Lerta Amount
0
Lerta Expiration Year
0
Residential Data
Card 1
Style
OLD STYLE
Basement
FULL
Year Built
1880
Exterior Wall
ALUMINUM/VINYL
Total Living Area
1264
Full Baths
1
Half Baths
0
Fuel Type
GAS
Heating
CENTRAL
Heating System
FORCED AIR
Stories
2.0
Total Bedrooms
2
Total Family Rooms
0
Total Rooms
6
Fireplaces
0
Other Buildings & Yards
Description
Built
Width
Length
Area
FRAME OR CB DETACHED GARAGE
2006
14
20
280
Sales History
Sale Date
Type
Price
Book / Page
Other Info
11/1/2022
LAND & BUILDING
75000
2022 / 023591
SPECIAL WARRANTY DEED
8/15/1984
0
1548 / 0407
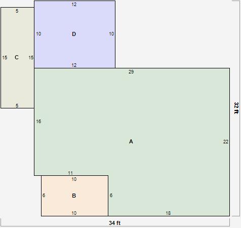
Parcel Sketches
Residential Card 1
A
MAIN
572 square feet
B
EFP ENCL FRAME PORCH
60 square feet
C
EFP ENCL FRAME PORCH
75 square feet
D
1S FR ONE STORY FRAME
120 square feet
Parcel Images
Please note:
this tab is for informational purposes only and may not show all delinquencies, see the Taxes tab for more accurate delinquent taxes due.