Elected Officials
Courts
Departments
Initiatives
Open Government
About
Login / Register
Home
/
Property & Tax Records
/
Property Records
/
Property & Tax Search
/
Parcel Profile
/
Print View
Search for Another Parcel
Parcel Profile
Historical Card
Sketches
Photos
Tax Map
Taxes
Print View
Print This Page
Address: 10158 CRANE ST
Parcel: 09003003000900
Parcel Profile
Address
10158 | CRANE | ST
Street Status
PAVED
School District
NORTHWESTERN SCHOOL
Acreage
4.2360
Classification
R
Land Use Code
SINGLE FAMILY
Legal Description
10158 CRANE ST 4.236 AC
Square Feet
1715
Topo
LEVEL
Utility
ALL PUBLIC
Zoning
Please contact your municipal zoning officer
Deed Book
2017
Deed Page
071217
2026 Tax Values
Land Value / Taxable
17,900 / 17,900.00
Building Value / Taxable
78,440 / 78,440.00
Total Value / Taxable
96,340 / 96,340.00
Clean & Green
Inactive
Homestead Status
Active
Farmstead Status
Inactive
Lerta Amount
0
Lerta Expiration Year
0
Residential Data
Card 1
Style
OLD STYLE
Basement
FULL
Year Built
1914
Exterior Wall
ALUMINUM/VINYL
Total Living Area
1715
Full Baths
2
Half Baths
0
Fuel Type
GAS
Heating
CENTRAL
Heating System
FORCED AIR
Stories
1.5
Total Bedrooms
3
Total Family Rooms
0
Total Rooms
7
Fireplaces
0
Other Buildings & Yards
Description
Built
Width
Length
Area
FRAME UTILITY SHED
2009
12
18
216
DETACHED METAL GARAGE
2016
24
30
720
Sales History
Sale Date
Type
Price
Book / Page
Other Info
7/12/2017
LAND & BUILDING
150000
2017 / 071217
SPECIAL WARRANTY DEED
2/3/2016
LAND & BUILDING
74000
2016 / 002358
SPECIAL WARRANTY DEED
7/31/2002
LAND & BUILDING
0
906 / 754
QUIT CLAIM DEED
8/20/1985
0
1593 / 0283
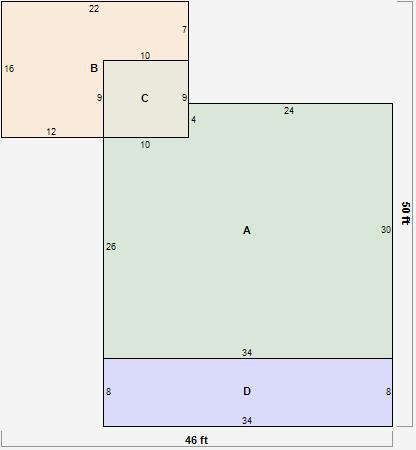
Parcel Sketches
Residential Card 1
A
MAIN
980 square feet
B
WDDCK WOOD DECKS
262 square feet
C
EFP ENCL FRAME PORCH
90 square feet
D
OMP OPEN MASONRY PORCH
272 square feet
Parcel Images
Please note:
this tab is for informational purposes only and may not show all delinquencies, see the Taxes tab for more accurate delinquent taxes due.