Elected Officials
Courts
Departments
Initiatives
Open Government
About
Login / Register
Home
/
Property & Tax Records
/
Property Records
/
Property & Tax Search
/
Parcel Profile
/
Print View
Search for Another Parcel
Parcel Profile
Historical Card
Sketches
Photos
Tax Map
Taxes
Print View
Print This Page
Address: 10473 CRANE ST
Parcel: 09005006000300
Parcel Profile
Address
10473 | CRANE | ST
Street Status
PAVED
School District
NORTHWESTERN SCHOOL
Acreage
0.8680
Classification
R
Land Use Code
SINGLE FAMILY
Legal Description
10473 CRANE ST 139.20 X 274.20 IRR
Square Feet
1677
Topo
LEVEL
Utility
ALL PUBLIC
Zoning
Please contact your municipal zoning officer
Deed Book
2018
Deed Page
025473
2026 Tax Values
Land Value / Taxable
14,800 / 14,800.00
Building Value / Taxable
87,600 / 87,600.00
Total Value / Taxable
102,400 / 102,400.00
Clean & Green
Inactive
Homestead Status
Active
Farmstead Status
Inactive
Lerta Amount
0
Lerta Expiration Year
0
Residential Data
Card 1
Style
OLD STYLE
Basement
FULL
Year Built
1915
Exterior Wall
ALUMINUM/VINYL
Total Living Area
1677
Full Baths
1
Half Baths
0
Fuel Type
GAS
Heating
CENTRAL
Heating System
FORCED AIR
Stories
2.0
Total Bedrooms
3
Total Family Rooms
0
Total Rooms
8
Fireplaces
0
Other Buildings & Yards
Description
Built
Width
Length
Area
FRAME OR CB DETACHED GARAGE
1992
24
28
672
FOUR SIDE CLOSED WD POLE BLDG
2018
0
0
720
RESIDENTIAL FINISHED OUTBUILD
2018
12
20
240
CANOPY
2018
10
12
120
Sales History
Sale Date
Type
Price
Book / Page
Other Info
12/11/2018
LAND & BUILDING
0
2018 / 025473
QUIT CLAIM DEED
3/9/2001
LAND & BUILDING
78500
757 / 663
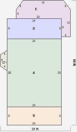
Parcel Sketches
Residential Card 1
A
MAIN
720 square feet
B
OFP OPEN FRAME PORCH
192 square feet
C
FRBAY FRAME BAY
21 square feet
D
1S FR ONE STORY FRAME
216 square feet
E
WDDCK WOOD DECKS
212 square feet
Parcel Images
Please note:
this tab is for informational purposes only and may not show all delinquencies, see the Taxes tab for more accurate delinquent taxes due.