Elected Officials
Courts
Departments
Initiatives
Open Government
About
Login / Register
Home
/
Property & Tax Records
/
Property Records
/
Property & Tax Search
/
Parcel Profile
/
Print View
Search for Another Parcel
Parcel Profile
Historical Card
Sketches
Photos
Tax Map
Taxes
Print View
Print This Page
Address: 10032 REED ST
Parcel: 09005006001700
Parcel Profile
Address
10032 | REED | ST
Street Status
PAVED
School District
NORTHWESTERN SCHOOL
Acreage
0.1791
Classification
R
Land Use Code
SINGLE FAMILY
Legal Description
10032 REED ST 60 X 130
Square Feet
1823
Topo
LEVEL
Utility
ALL PUBLIC
Zoning
Please contact your municipal zoning officer
Deed Book
2013
Deed Page
025879
2026 Tax Values
Land Value / Taxable
10,600 / 10,600.00
Building Value / Taxable
68,400 / 68,400.00
Total Value / Taxable
79,000 / 79,000.00
Clean & Green
Inactive
Homestead Status
Active
Farmstead Status
Inactive
Lerta Amount
0
Lerta Expiration Year
0
Residential Data
Card 1
Style
OLD STYLE
Basement
FULL
Year Built
1910
Exterior Wall
ALUMINUM/VINYL
Total Living Area
1823
Full Baths
1
Half Baths
0
Fuel Type
GAS
Heating
CENTRAL
Heating System
FORCED AIR
Stories
2.0
Total Bedrooms
4
Total Family Rooms
0
Total Rooms
8
Fireplaces
0
Other Buildings & Yards
Description
Built
Width
Length
Area
REINFORCED CONCRETE POOL
1984
16
34
544
Sales History
Sale Date
Type
Price
Book / Page
Other Info
9/30/2013
LAND & BUILDING
0
2013 / 025879
QUIT CLAIM DEED
10/31/2006
LAND & BUILDING
84000
1372 / 0961
WARRANTY/SURVIVORSHIP DEED
11/27/2001
LAND & BUILDING
84900
828 / 2374
6/27/1996
LAND & BUILDING
77000
447 / 1867
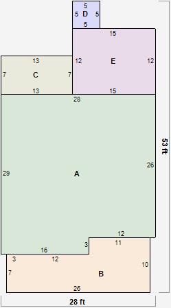
Parcel Sketches
Residential Card 1
A
MAIN
776 square feet
B
OFP OPEN FRAME PORCH
215 square feet
C
1S FR ONE STORY FRAME
91 square feet
D
MA STOOP/TERR MAS STOOP
25 square feet
E
1S FR ONE STORY FRAME
180 square feet
Parcel Images
Please note:
this tab is for informational purposes only and may not show all delinquencies, see the Taxes tab for more accurate delinquent taxes due.