Elected Officials
Courts
Departments
Initiatives
Open Government
About
Login / Register
Home
/
Property & Tax Records
/
Property Records
/
Property & Tax Search
/
Parcel Profile
/
Print View
Search for Another Parcel
Parcel Profile
Historical Card
Sketches
Photos
Tax Map
Taxes
Print View
Print This Page
Address: 10431 BOWMAN AVE
Parcel: 09005012000800
Parcel Profile
Address
10431 | BOWMAN | AVE
Street Status
PAVED
School District
NORTHWESTERN SCHOOL
Acreage
0.9470
Classification
R
Land Use Code
SINGLE FAMILY
Legal Description
10431 BOWMAN AVE 150 X 275
Square Feet
1176
Topo
LEVEL
Utility
ALL PUBLIC
Zoning
Please contact your municipal zoning officer
Deed Book
2013
Deed Page
025012
2026 Tax Values
Land Value / Taxable
15,300 / 15,300.00
Building Value / Taxable
56,700 / 56,700.00
Total Value / Taxable
72,000 / 72,000.00
Clean & Green
Inactive
Homestead Status
Active
Farmstead Status
Inactive
Lerta Amount
0
Lerta Expiration Year
0
Residential Data
Card 1
Style
OLD STYLE
Basement
FULL
Year Built
1915
Exterior Wall
ALUMINUM/VINYL
Total Living Area
1176
Full Baths
1
Half Baths
1
Fuel Type
GAS
Heating
CENTRAL
Heating System
FORCED AIR
Stories
1.5
Total Bedrooms
3
Total Family Rooms
0
Total Rooms
7
Fireplaces
0
Other Buildings & Yards
Description
Built
Width
Length
Area
FRAME OR CB DETACHED GARAGE
1960
20
22
440
FRAME UTILITY SHED
1940
0
0
498
CANOPY
1990
12
12
144
Sales History
Sale Date
Type
Price
Book / Page
Other Info
9/18/2013
LAND & BUILDING
70000
2013 / 025012
FIDUCIARY DEED
6/26/2013
LAND & BUILDING
0
2013 / 016298
QUIT CLAIM DEED
8/3/1953
0
0657 / 0150
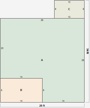
Parcel Sketches
Residential Card 1
A
MAIN
672 square feet
B
EFP ENCL FRAME PORCH
112 square feet
C
EFP ENCL FRAME PORCH
60 square feet
Parcel Images
Please note:
this tab is for informational purposes only and may not show all delinquencies, see the Taxes tab for more accurate delinquent taxes due.