Elected Officials
Courts
Departments
Initiatives
Open Government
About
Login / Register
Home
/
Property & Tax Records
/
Property Records
/
Property & Tax Search
/
Parcel Profile
/
Print View
Search for Another Parcel
Parcel Profile
Historical Card
Sketches
Photos
Tax Map
Taxes
Print View
Print This Page
Address: 1005 LAKESIDE DR
Parcel: 11001003000300
Parcel Profile
Address
1005 | LAKESIDE | DR
Street Status
PAVED
School District
GENERAL MCLANE SCHOOL
Acreage
0.1492
Classification
R
Land Use Code
SINGLE FAMILY
Legal Description
1005 LAKESIDE DR LOT 2, 3 & PT OF 4 74.6X101.2IRR
Square Feet
1557
Topo
LEVEL
Utility
ALL PUBLIC
Zoning
Please contact your municipal zoning officer
Deed Book
2024
Deed Page
003585
2026 Tax Values
Land Value / Taxable
67,800 / 67,800.00
Building Value / Taxable
84,700 / 84,700.00
Total Value / Taxable
152,500 / 152,500.00
Clean & Green
Inactive
Homestead Status
Inactive
Farmstead Status
Inactive
Lerta Amount
0
Lerta Expiration Year
0
Residential Data
Card 1
Style
CAPE
Basement
NONE
Year Built
1939
Exterior Wall
ALUMINUM/VINYL
Total Living Area
1557
Full Baths
1
Half Baths
2
Fuel Type
SOLAR
Heating
CENTRAL
Heating System
ELECTRIC
Stories
1.0
Total Bedrooms
3
Total Family Rooms
0
Total Rooms
6
Fireplaces
1
Other Buildings & Yards
Description
Built
Width
Length
Area
FRAME UTILITY SHED
1970
0
0
260
Sales History
Sale Date
Type
Price
Book / Page
Other Info
3/11/2024
LAND & BUILDING
0
2024 / 003585
QUIT CLAIM DEED
11/27/1979
LAND & BUILDING
12000
1372 / 0270
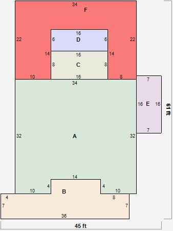
Parcel Sketches
Residential Card 1
A
MAIN
1032 square feet
B
OFP OPEN FRAME PORCH
308 square feet
C
EFP ENCL FRAME PORCH
128 square feet
D
OFP OPEN FRAME PORCH
96 square feet
E
1S FR ONE STORY FRAME
112 square feet
F
MA_PT CONC/MAS PATIO
524 square feet
Parcel Images
Please note:
this tab is for informational purposes only and may not show all delinquencies, see the Taxes tab for more accurate delinquent taxes due.