Elected Officials
Courts
Departments
Initiatives
Open Government
About
Login / Register
Home
/
Property & Tax Records
/
Property Records
/
Property & Tax Search
/
Parcel Profile
/
Print View
Search for Another Parcel
Parcel Profile
Historical Card
Sketches
Photos
Tax Map
Taxes
Print View
Print This Page
Address: 114 WALNUT ST
Parcel: 11001007001400
Parcel Profile
Address
114 | WALNUT | ST
Street Status
PAVED
School District
GENERAL MCLANE SCHOOL
Acreage
0.3673
Classification
R
Land Use Code
SINGLE FAMILY
Legal Description
114 WALNUT ST 160 X 100
Square Feet
2483
Topo
LEVEL
Utility
ALL PUBLIC
Zoning
Please contact your municipal zoning officer
Deed Book
0228
Deed Page
0338
2026 Tax Values
Land Value / Taxable
33,200 / 33,200.00
Building Value / Taxable
109,900 / 109,900.00
Total Value / Taxable
143,100 / 143,100.00
Clean & Green
Inactive
Homestead Status
Inactive
Farmstead Status
Inactive
Lerta Amount
0
Lerta Expiration Year
0
Residential Data
Card 1
Style
CONVENTIONAL
Basement
PART
Year Built
1946
Exterior Wall
ALUMINUM/VINYL
Total Living Area
2483
Full Baths
3
Half Baths
0
Fuel Type
GAS
Heating
CENTRAL A/C
Heating System
FORCED AIR
Stories
2.0
Total Bedrooms
4
Total Family Rooms
1
Total Rooms
0
Fireplaces
1
Other Buildings & Yards
Description
Built
Width
Length
Area
FRAME OR CB DETACHED GARAGE
1940
20
20
400
Sales History
Sale Date
Type
Price
Book / Page
Other Info
8/28/1992
LAND & BUILDING
74900
0228 / 0338
DEED
1/27/1981
46797
1411 / 0047
9/8/1978
50000
1320 / 0055
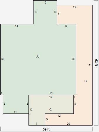
Parcel Sketches
Residential Card 1
A
MAIN
1148 square feet
B
OFP OPEN FRAME PORCH
494 square feet
C
UNFIN BSMT BASEMENT UNFINISHED 1S FR ONE STORY FRAME OFP OPEN FRAME PORCH
187 square feet
Parcel Images
Please note:
this tab is for informational purposes only and may not show all delinquencies, see the Taxes tab for more accurate delinquent taxes due.