Elected Officials
Courts
Departments
Initiatives
Open Government
About
Login / Register
Home
/
Property & Tax Records
/
Property Records
/
Property & Tax Search
/
Parcel Profile
/
Print View
Search for Another Parcel
Parcel Profile
Historical Card
Sketches
Photos
Tax Map
Taxes
Print View
Print This Page
Address: 609 LAKESIDE DR
Parcel: 11002017000100
Parcel Profile
Address
609 | LAKESIDE | DR
Street Status
PAVED
School District
GENERAL MCLANE SCHOOL
Acreage
0.0486
Classification
R
Land Use Code
SINGLE FAMILY
Legal Description
609 LAKESIDE DR LT 10 30 X 70.5 IRR
Square Feet
477
Topo
LEVEL
Utility
ALL PUBLIC
Zoning
Please contact your municipal zoning officer
Deed Book
2016
Deed Page
027581
2025 Tax Values
Land Value / Taxable
53,800 / 53,800.00
Building Value / Taxable
50,210 / 50,210.00
Total Value / Taxable
104,010 / 104,010.00
Clean & Green
Inactive
Homestead Status
Inactive
Farmstead Status
Inactive
Lerta Amount
0
Lerta Expiration Year
0
Residential Data
Card 1
Style
BUNGALOW
Basement
NONE
Year Built
1932
Exterior Wall
FRAME
Total Living Area
477
Full Baths
1
Half Baths
0
Fuel Type
GAS
Heating
CENTRAL
Heating System
FORCED AIR
Stories
1.0
Total Bedrooms
3
Total Family Rooms
0
Total Rooms
5
Fireplaces
0
Other Buildings & Yards
No OBY Data Found
Sales History
Sale Date
Type
Price
Book / Page
Other Info
12/19/2016
LAND & BUILDING
80000
2016 / 027581
SPECIAL WARRANTY DEED
11/3/2015
LAND & BUILDING
98500
2015 / 024637
SPECIAL WARRANTY DEED
2/27/2002
LAND & BUILDING
0
0857 / 0402
AFFIDAVIT
4/27/1995
0
0381 / 0218
6/6/1984
0
1538 / 0420
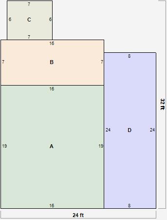
Parcel Sketches
Residential Card 1
A
MAIN
304 square feet
B
1S FR ONE STORY FRAME
112 square feet
C
FR UT FRAME UTILITY BUILDING
42 square feet
D
EFP ENCL FRAME PORCH
192 square feet
Parcel Images