Elected Officials
Courts
Departments
Initiatives
Open Government
About
Login / Register
Home
/
Property & Tax Records
/
Property Records
/
Property & Tax Search
/
Parcel Profile
/
Print View
Search for Another Parcel
Parcel Profile
Historical Card
Sketches
Photos
Tax Map
Taxes
Print View
Print This Page
Address: 110 COVE DR
Parcel: 11004032005402
Parcel Profile
Address
110 | COVE | DR
Street Status
PAVED
School District
GENERAL MCLANE SCHOOL
Acreage
0.1474
Classification
R
Land Use Code
SINGLE FAMILY
Legal Description
110 COVE DR 125 X 56.45 IRR
Square Feet
1886
Topo
ROLLING
Utility
ALL PUBLIC
Zoning
Please contact your municipal zoning officer
Deed Book
1523
Deed Page
0566
2026 Tax Values
Land Value / Taxable
25,900 / 25,900.00
Building Value / Taxable
59,400 / 59,400.00
Total Value / Taxable
85,300 / 85,300.00
Clean & Green
Inactive
Homestead Status
Active
Farmstead Status
Inactive
Lerta Amount
0
Lerta Expiration Year
0
Residential Data
Card 1
Style
OLD STYLE
Basement
FULL
Year Built
1930
Exterior Wall
FRAME
Total Living Area
1886
Full Baths
1
Half Baths
1
Fuel Type
GAS
Heating
CENTRAL
Heating System
HOT WATER
Stories
2.0
Total Bedrooms
3
Total Family Rooms
0
Total Rooms
7
Fireplaces
0
Other Buildings & Yards
Description
Built
Width
Length
Area
METAL SHED
1980
10
10
100
Sales History
Sale Date
Type
Price
Book / Page
Other Info
1/27/1984
LAND & BUILDING
38000
1523 / 0566
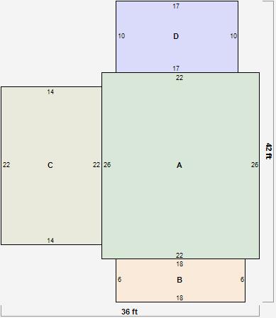
Parcel Sketches
Residential Card 1
A
MAIN
572 square feet
B
OFP OPEN FRAME PORCH
108 square feet
C
WDDCK WOOD DECKS
308 square feet
D
UNFIN BSMT BASEMENT UNFINISHED 1S FR ONE STORY FRAME
170 square feet
Parcel Images
Please note:
this tab is for informational purposes only and may not show all delinquencies, see the Taxes tab for more accurate delinquent taxes due.