Elected Officials
Courts
Departments
Initiatives
Open Government
About
Login / Register
Home
/
Property & Tax Records
/
Property Records
/
Property & Tax Search
/
Parcel Profile
/
Print View
Search for Another Parcel
Parcel Profile
Historical Card
Sketches
Photos
Tax Map
Taxes
Print View
Print This Page
Address: 320 ERIE ST
Parcel: 11004032009200
Parcel Profile
Address
320 | ERIE | ST
Street Status
PAVED | SIDEWALK
School District
GENERAL MCLANE SCHOOL
Acreage
0.2411
Classification
R
Land Use Code
SINGLE FAMILY
Legal Description
ERIE ST 70X162 IRR
Square Feet
780
Topo
LEVEL
Utility
ALL PUBLIC
Zoning
Please contact your municipal zoning officer
Deed Book
0794
Deed Page
1677
2025 Tax Values
Land Value / Taxable
29,700 / 29,700.00
Building Value / Taxable
26,600 / 26,600.00
Total Value / Taxable
56,300 / 56,300.00
Clean & Green
Inactive
Homestead Status
Inactive
Farmstead Status
Inactive
Lerta Amount
0
Lerta Expiration Year
0
Residential Data
Card 1
Style
BUNGALOW
Basement
FULL
Year Built
1936
Exterior Wall
ALUMINUM/VINYL
Total Living Area
780
Full Baths
1
Half Baths
0
Fuel Type
GAS
Heating
CENTRAL
Heating System
FORCED AIR
Stories
1.0
Total Bedrooms
2
Total Family Rooms
0
Total Rooms
4
Fireplaces
0
Other Buildings & Yards
No OBY Data Found
Sales History
Sale Date
Type
Price
Book / Page
Other Info
7/23/2001
LAND & BUILDING
45900
0794 / 1677
6/29/1989
30000
0090 / 2233
5/27/1981
31000
1421 / 0313
3/26/1981
0
1415 / 0353
2/25/1976
22700
1200 / 0018
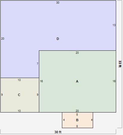
Parcel Sketches
Residential Card 1
A
MAIN
320 square feet
B
WDDCK WOOD DECKS
32 square feet
C
OFP OPEN FRAME PORCH
90 square feet
D
UNFIN BSMT BASEMENT UNFINISHED 1S FR ONE STORY FRAME
460 square feet
Parcel Images