Elected Officials
Courts
Departments
Initiatives
Open Government
About
Login / Register
Home
/
Property & Tax Records
/
Property Records
/
Property & Tax Search
/
Parcel Profile
/
Print View
Search for Another Parcel
Parcel Profile
Historical Card
Sketches
Photos
Tax Map
Taxes
Print View
Print This Page
Address: 322 ERIE ST
Parcel: 11004032009300
Parcel Profile
Address
322 | ERIE | ST
Street Status
PAVED | SIDEWALK
School District
GENERAL MCLANE SCHOOL
Acreage
0.0648
Classification
R
Land Use Code
SINGLE FAMILY
Legal Description
322 ERIE ST 68 X 83 X 105 TRI
Square Feet
558
Topo
LEVEL
Utility
ALL PUBLIC
Zoning
Please contact your municipal zoning officer
Deed Book
2023
Deed Page
002705
2025 Tax Values
Land Value / Taxable
22,300 / 22,300.00
Building Value / Taxable
22,700 / 22,700.00
Total Value / Taxable
45,000 / 45,000.00
Clean & Green
Inactive
Homestead Status
Inactive
Farmstead Status
Inactive
Lerta Amount
0
Lerta Expiration Year
0
Residential Data
Card 1
Style
BUNGALOW
Basement
FULL
Year Built
1910
Exterior Wall
ALUMINUM/VINYL
Total Living Area
558
Full Baths
1
Half Baths
0
Fuel Type
GAS
Heating
CENTRAL
Heating System
FORCED AIR
Stories
1.0
Total Bedrooms
1
Total Family Rooms
0
Total Rooms
3
Fireplaces
0
Other Buildings & Yards
No OBY Data Found
Sales History
Sale Date
Type
Price
Book / Page
Other Info
2/21/2023
LAND & BUILDING
0
2023 / 002705
QUIT CLAIM DEED
11/1/2012
LAND & BUILDING
39000
2012 / 030161
FIDUCIARY DEED
11/4/2004
LAND & BUILDING
49900
1187 / 0907
DEED
11/8/1979
0
1370 / 0293
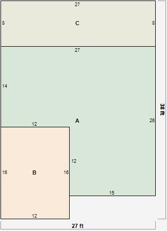
Parcel Sketches
Residential Card 1
A
MAIN
558 square feet
B
CARPT CARPORT
192 square feet
C
WDDCK WOOD DECKS
216 square feet
Parcel Images