Elected Officials
Courts
Departments
Initiatives
Open Government
About
Login / Register
Home
/
Property & Tax Records
/
Property Records
/
Property & Tax Search
/
Parcel Profile
/
Print View
Search for Another Parcel
Parcel Profile
Historical Card
Sketches
Photos
Tax Map
Taxes
Print View
Print This Page
Address: 110 WATERFORD ST
Parcel: 11010043000400
Parcel Profile
Address
110 | WATERFORD | ST
Street Status
PAVED
School District
GENERAL MCLANE SCHOOL
Acreage
0.4638
Classification
R
Land Use Code
TWO FAMILY
Legal Description
110 WATERFORD ST 85.8X162.5 I
Square Feet
2444
Topo
LEVEL
Utility
ALL PUBLIC
Zoning
Please contact your municipal zoning officer
Deed Book
2023
Deed Page
003903
2026 Tax Values
Land Value / Taxable
32,600 / 32,600.00
Building Value / Taxable
97,800 / 97,800.00
Total Value / Taxable
130,400 / 130,400.00
Clean & Green
Inactive
Homestead Status
Inactive
Farmstead Status
Inactive
Lerta Amount
0
Lerta Expiration Year
0
Residential Data
Card 1
Style
OLD STYLE
Basement
FULL
Year Built
1890
Exterior Wall
ALUMINUM/VINYL
Total Living Area
2444
Full Baths
2
Half Baths
0
Fuel Type
GAS
Heating
CENTRAL
Heating System
FORCED AIR
Stories
2.0
Total Bedrooms
4
Total Family Rooms
0
Total Rooms
9
Fireplaces
0
Other Buildings & Yards
No OBY Data Found
Sales History
Sale Date
Type
Price
Book / Page
Other Info
3/14/2023
LAND & BUILDING
142000
2023 / 003903
SPECIAL WARRANTY DEED
2/27/2020
LAND & BUILDING
155000
2020 / 003844
SPECIAL WARRANTY DEED
10/5/2000
LAND & BUILDING
130000
0730 / 1604
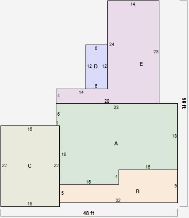
Parcel Sketches
Residential Card 1
A
MAIN
646 square feet
B
OFP OPEN FRAME PORCH
224 square feet
C
1S FR ONE STORY FRAME 1S FR ONE STORY FRAME
352 square feet
D
EFP ENCL FRAME PORCH
72 square feet
E
1S FR ONE STORY FRAME
448 square feet
Parcel Images
Please note:
this tab is for informational purposes only and may not show all delinquencies, see the Taxes tab for more accurate delinquent taxes due.