Elected Officials
Courts
Departments
Initiatives
Open Government
About
Login / Register
Home
/
Property & Tax Records
/
Property Records
/
Property & Tax Search
/
Parcel Profile
/
Print View
Search for Another Parcel
Parcel Profile
Historical Card
Sketches
Photos
Tax Map
Taxes
Print View
Print This Page
Address: 147 MEADVILLE ST
Parcel: 11010044001300
Parcel Profile
Address
147 | MEADVILLE | ST
Street Status
PAVED | SIDEWALK
School District
GENERAL MCLANE SCHOOL
Acreage
0.2363
Classification
R
Land Use Code
SINGLE FAMILY
Legal Description
147 MEADVILLE ST 62 X 166
Square Feet
2240
Topo
LEVEL
Utility
ALL PUBLIC
Zoning
Please contact your municipal zoning officer
Deed Book
1191
Deed Page
0195
2026 Tax Values
Land Value / Taxable
29,600 / 29,600.00
Building Value / Taxable
93,000 / 93,000.00
Total Value / Taxable
122,600 / 122,600.00
Clean & Green
Inactive
Homestead Status
Inactive
Farmstead Status
Inactive
Lerta Amount
0
Lerta Expiration Year
0
Residential Data
Card 1
Style
OLD STYLE
Basement
FULL
Year Built
1935
Exterior Wall
ALUMINUM/VINYL
Total Living Area
2240
Full Baths
2
Half Baths
0
Fuel Type
GAS
Heating
CENTRAL
Heating System
FORCED AIR
Stories
2.0
Total Bedrooms
4
Total Family Rooms
0
Total Rooms
9
Fireplaces
1
Other Buildings & Yards
No OBY Data Found
Sales History
Sale Date
Type
Price
Book / Page
Other Info
1/5/1976
0
1191 / 0195
1/5/1976
LAND & BUILDING
35000
1191 / 0195
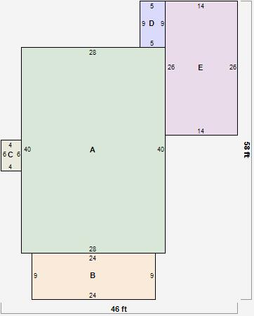
Parcel Sketches
Residential Card 1
A
MAIN
1120 square feet
B
OFP OPEN FRAME PORCH
216 square feet
C
OFP OPEN FRAME PORCH
24 square feet
D
EFP ENCL FRAME PORCH
45 square feet
E
FR GR FRAME GARAGE
364 square feet
Parcel Images
Please note:
this tab is for informational purposes only and may not show all delinquencies, see the Taxes tab for more accurate delinquent taxes due.