Elected Officials
Courts
Departments
Initiatives
Open Government
About
Login / Register
Home
/
Property & Tax Records
/
Property Records
/
Property & Tax Search
/
Parcel Profile
/
Print View
Search for Another Parcel
Parcel Profile
Historical Card
Sketches
Photos
Tax Map
Taxes
Print View
Print This Page
Address: 106 ONTARIO ST
Parcel: 11010045001100
Parcel Profile
Address
106 | ONTARIO | ST
Street Status
PAVED | SIDEWALK
School District
GENERAL MCLANE SCHOOL
Acreage
0.1722
Classification
R
Land Use Code
TWO FAMILY
Legal Description
106 ONTARIO ST 60 X 125
Square Feet
1752
Topo
LEVEL
Utility
ALL PUBLIC
Zoning
Please contact your municipal zoning officer
Deed Book
2024
Deed Page
020675
2026 Tax Values
Land Value / Taxable
27,000 / 27,000.00
Building Value / Taxable
91,600 / 91,600.00
Total Value / Taxable
118,600 / 118,600.00
Clean & Green
Inactive
Homestead Status
Inactive
Farmstead Status
Inactive
Lerta Amount
0
Lerta Expiration Year
0
Residential Data
Card 1
Style
OLD STYLE
Basement
FULL
Year Built
1910
Exterior Wall
ALUMINUM/VINYL
Total Living Area
1752
Full Baths
2
Half Baths
0
Fuel Type
GAS
Heating
CENTRAL
Heating System
FORCED AIR
Stories
2.0
Total Bedrooms
3
Total Family Rooms
0
Total Rooms
7
Fireplaces
0
Other Buildings & Yards
No OBY Data Found
Sales History
Sale Date
Type
Price
Book / Page
Other Info
12/17/2024
LAND & BUILDING
129900
2024 / 020675
SPECIAL WARRANTY DEED
2/27/2020
LAND & BUILDING
132312
2020 / 003842
SPECIAL WARRANTY DEED
8/16/2005
LAND & BUILDING
116000
1261 / 0149
WARRANTY/SURVIVORSHIP DEED
11/22/1996
LAND & BUILDING
75000
0472 / 1224
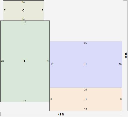
Parcel Sketches
Residential Card 1
A
MAIN
476 square feet
B
OFP OPEN FRAME PORCH
200 square feet
C
WDDCK WOOD DECKS
98 square feet
D
1S FR ONE STORY FRAME 1S FR ONE STORY FRAME
400 square feet
Parcel Images
Please note:
this tab is for informational purposes only and may not show all delinquencies, see the Taxes tab for more accurate delinquent taxes due.