Elected Officials
Courts
Departments
Initiatives
Open Government
About
Login / Register
Home
/
Property & Tax Records
/
Property Records
/
Property & Tax Search
/
Parcel Profile
/
Print View
Search for Another Parcel
Parcel Profile
Historical Card
Sketches
Photos
Tax Map
Taxes
Print View
Print This Page
Address: 215 NORMAL ONTARIO STS
Parcel: 11010045001500
Parcel Profile
Address
215 | NORMAL ONTARIO | STS
Street Status
PAVED | SIDEWALK
School District
GENERAL MCLANE SCHOOL
Acreage
0.2203
Classification
R
Land Use Code
SINGLE FAMILY
Legal Description
NORMAL & ONTARIO STS 52.1X165.
Square Feet
1794
Topo
LEVEL
Utility
ALL PUBLIC
Zoning
Please contact your municipal zoning officer
Deed Book
0161
Deed Page
2174
2026 Tax Values
Land Value / Taxable
29,100 / 29,100.00
Building Value / Taxable
76,680 / 76,680.00
Total Value / Taxable
105,780 / 105,780.00
Clean & Green
Inactive
Homestead Status
Inactive
Farmstead Status
Inactive
Lerta Amount
0
Lerta Expiration Year
0
Residential Data
Card 1
Style
OLD STYLE
Basement
FULL
Year Built
1910
Exterior Wall
FRAME
Total Living Area
1794
Full Baths
2
Half Baths
0
Fuel Type
GAS
Heating
CENTRAL
Heating System
FORCED AIR
Stories
2.0
Total Bedrooms
4
Total Family Rooms
0
Total Rooms
8
Fireplaces
0
Other Buildings & Yards
No OBY Data Found
Sales History
Sale Date
Type
Price
Book / Page
Other Info
5/24/1991
0
0161 / 2174
5/24/1991
LAND & BUILDING
34000
0161 / 2174
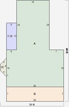
Parcel Sketches
Residential Card 1
A
MAIN
888 square feet
B
OFP OPEN FRAME PORCH
196 square feet
C
FROVR FRAME OVERHANG
18 square feet
D
OFP OPEN FRAME PORCH
65 square feet
Parcel Images
Please note:
this tab is for informational purposes only and may not show all delinquencies, see the Taxes tab for more accurate delinquent taxes due.