Elected Officials
Courts
Departments
Initiatives
Open Government
About
Login / Register
Home
/
Property & Tax Records
/
Property Records
/
Property & Tax Search
/
Parcel Profile
/
Print View
Search for Another Parcel
Parcel Profile
Historical Card
Sketches
Photos
Tax Map
Taxes
Print View
Print This Page
Address: 103 WATERFORD ST
Parcel: 11011035002000
Parcel Profile
Address
103 | WATERFORD | ST
Street Status
PAVED
School District
GENERAL MCLANE SCHOOL
Acreage
0.0782
Classification
R
Land Use Code
SINGLE FAMILY
Legal Description
103 WATERFORD ST 45.8 X 91.3I
Square Feet
1608
Topo
LEVEL
Utility
ALL PUBLIC
Zoning
Please contact your municipal zoning officer
Deed Book
2020
Deed Page
000218
2026 Tax Values
Land Value / Taxable
22,900 / 22,900.00
Building Value / Taxable
73,500 / 73,500.00
Total Value / Taxable
96,400 / 96,400.00
Clean & Green
Inactive
Homestead Status
Active
Farmstead Status
Inactive
Lerta Amount
0
Lerta Expiration Year
0
Residential Data
Card 1
Style
OLD STYLE
Basement
FULL
Year Built
1900
Exterior Wall
ALUMINUM/VINYL
Total Living Area
1608
Full Baths
1
Half Baths
1
Fuel Type
GAS
Heating
CENTRAL A/C
Heating System
FORCED AIR
Stories
2.0
Total Bedrooms
3
Total Family Rooms
0
Total Rooms
7
Fireplaces
1
Other Buildings & Yards
No OBY Data Found
Sales History
Sale Date
Type
Price
Book / Page
Other Info
1/6/2020
LAND & BUILDING
126900
2020 / 000218
SPECIAL WARRANTY DEED
10/25/2010
LAND & BUILDING
100000
2010 / 026497
SPECIAL WARRANTY DEED
6/18/1979
0
1352 / 0448
6/18/1979
LAND & BUILDING
0
1352 / 0448
AFFIDAVIT
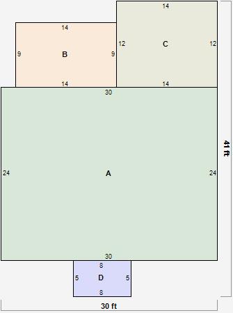
Parcel Sketches
Residential Card 1
A
MAIN
720 square feet
B
MA_PT CONC/MAS PATIO
126 square feet
C
1S FR ONE STORY FRAME
168 square feet
D
EFP ENCL FRAME PORCH
40 square feet
Parcel Images
Please note:
this tab is for informational purposes only and may not show all delinquencies, see the Taxes tab for more accurate delinquent taxes due.