Elected Officials
Courts
Departments
Initiatives
Open Government
About
Login / Register
Home
/
Property & Tax Records
/
Property Records
/
Property & Tax Search
/
Parcel Profile
/
Print View
Search for Another Parcel
Parcel Profile
Historical Card
Sketches
Photos
Tax Map
Taxes
Print View
Print This Page
Address: 118 MAPLE DR
Parcel: 11011037000700
Parcel Profile
Address
118 | MAPLE | DR
Street Status
PAVED
School District
GENERAL MCLANE SCHOOL
Acreage
0.2358
Classification
R
Land Use Code
MULTIPLE DWELLINGS
Legal Description
118 MAPLE DR 82.5X124.5
Square Feet
2908
Topo
ROLLING
Utility
ALL PUBLIC
Zoning
Please contact your municipal zoning officer
Deed Book
0323
Deed Page
1312
2026 Tax Values
Land Value / Taxable
44,400 / 44,400.00
Building Value / Taxable
184,200 / 184,200.00
Total Value / Taxable
228,600 / 228,600.00
Clean & Green
Inactive
Homestead Status
Inactive
Farmstead Status
Inactive
Lerta Amount
0
Lerta Expiration Year
0
Residential Data
Card 1
Style
CAPE
Basement
FULL
Year Built
1939
Exterior Wall
ALUMINUM/VINYL
Total Living Area
1516
Full Baths
1
Half Baths
1
Fuel Type
GAS
Heating
CENTRAL
Heating System
FORCED AIR
Stories
1.0
Total Bedrooms
4
Total Family Rooms
1
Total Rooms
8
Fireplaces
1
Card 2
Style
OLD STYLE
Basement
NONE
Year Built
1954
Exterior Wall
ALUMINUM/VINYL
Total Living Area
1040
Full Baths
2
Half Baths
0
Fuel Type
GAS
Heating
CENTRAL
Heating System
FORCED AIR
Stories
2.0
Total Bedrooms
3
Total Family Rooms
0
Total Rooms
6
Fireplaces
0
Card 3
Style
BUNGALOW
Basement
NONE
Year Built
1936
Exterior Wall
ALUMINUM/VINYL
Total Living Area
352
Full Baths
1
Half Baths
0
Fuel Type
GAS
Heating
CENTRAL
Heating System
FORCED AIR
Stories
1.0
Total Bedrooms
1
Total Family Rooms
0
Total Rooms
4
Fireplaces
0
Other Buildings & Yards
No OBY Data Found
Sales History
Sale Date
Type
Price
Book / Page
Other Info
4/14/1994
LAND & BUILDING
117000
0323 / 1312
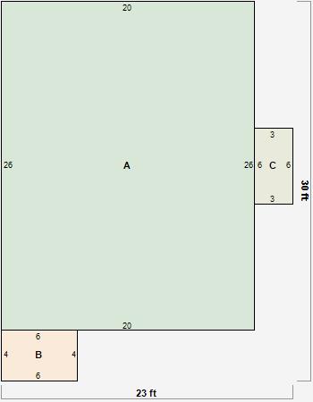
Parcel Sketches
Residential Card 1
A
MAIN
1008 square feet
B
UNFIN BSMT BASEMENT UNFINISHED 1S FR ONE STORY FRAME
105 square feet
C
OFP OPEN FRAME PORCH
80 square feet
D
UNFIN BSMT BASEMENT UNFINISHED FR GR FRAME GARAGE
384 square feet
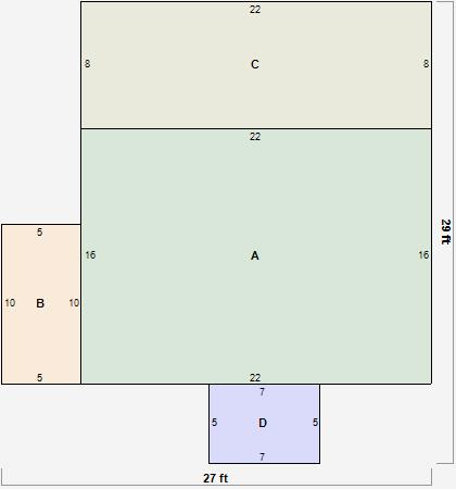
Residential Card 2
A
MAIN
520 square feet
B
WDDCK WOOD DECKS
24 square feet
C
OFP OPEN FRAME PORCH
18 square feet
Residential Card 3
A
MAIN
352 square feet
B
EFP ENCL FRAME PORCH
50 square feet
C
EFP ENCL FRAME PORCH
176 square feet
D
MA STOOP/TERR MAS STOOP
35 square feet
Parcel Images
Please note:
this tab is for informational purposes only and may not show all delinquencies, see the Taxes tab for more accurate delinquent taxes due.