Elected Officials
Courts
Departments
Initiatives
Open Government
About
Login / Register
Home
/
Property & Tax Records
/
Property Records
/
Property & Tax Search
/
Parcel Profile
/
Print View
Search for Another Parcel
Parcel Profile
Historical Card
Sketches
Photos
Tax Map
Taxes
Print View
Print This Page
Address: 108 WATER ST
Parcel: 11014041001500
Parcel Profile
Address
108 | WATER | ST
Street Status
PAVED | SIDEWALK
School District
GENERAL MCLANE SCHOOL
Acreage
0.3333
Classification
R
Land Use Code
SINGLE FAMILY
Legal Description
108 WATER ST 96 X 165
Square Feet
1836
Topo
ABOVE STREET
Utility
ALL PUBLIC
Zoning
Please contact your municipal zoning officer
Deed Book
2017
Deed Page
017892
2026 Tax Values
Land Value / Taxable
31,100 / 31,100.00
Building Value / Taxable
88,900 / 88,900.00
Total Value / Taxable
120,000 / 120,000.00
Clean & Green
Inactive
Homestead Status
Active
Farmstead Status
Inactive
Lerta Amount
0
Lerta Expiration Year
0
Residential Data
Card 1
Style
OLD STYLE
Basement
PART
Year Built
1900
Exterior Wall
ALUMINUM/VINYL
Total Living Area
1836
Full Baths
2
Half Baths
0
Fuel Type
GAS
Heating
CENTRAL
Heating System
HOT WATER
Stories
2.0
Total Bedrooms
3
Total Family Rooms
1
Total Rooms
7
Fireplaces
1
Other Buildings & Yards
Description
Built
Width
Length
Area
FLAT BARN
1900
20
30
600
Sales History
Sale Date
Type
Price
Book / Page
Other Info
8/17/2017
LAND & BUILDING
157500
2017 / 017892
SPECIAL WARRANTY DEED
3/16/2001
LAND & BUILDING
90000
0758 / 1497
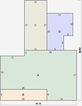
Parcel Sketches
Residential Card 1
A
MAIN
918 square feet
B
OFP OPEN FRAME PORCH
150 square feet
C
FR UT FRAME UTILITY BUILDING
324 square feet
D
MA_PT CONC/MAS PATIO
240 square feet
Parcel Images
Please note:
this tab is for informational purposes only and may not show all delinquencies, see the Taxes tab for more accurate delinquent taxes due.