Elected Officials
Courts
Departments
Initiatives
Open Government
About
Login / Register
Home
/
Property & Tax Records
/
Property Records
/
Property & Tax Search
/
Parcel Profile
/
Print View
Search for Another Parcel
Parcel Profile
Historical Card
Sketches
Photos
Tax Map
Taxes
Print View
Print This Page
Address: 206 MEADVILLE ST
Parcel: 11014047000500
Parcel Profile
Address
206 | MEADVILLE | ST
Street Status
PAVED
School District
GENERAL MCLANE SCHOOL
Acreage
0.2782
Classification
R
Land Use Code
TWO FAMILY
Legal Description
206 MEADVILLE ST 60 X 202
Square Feet
2880
Topo
LEVEL
Utility
ALL PUBLIC
Zoning
Please contact your municipal zoning officer
Deed Book
2021
Deed Page
013917
2026 Tax Values
Land Value / Taxable
30,100 / 30,100.00
Building Value / Taxable
113,810 / 113,810.00
Total Value / Taxable
143,910 / 143,910.00
Clean & Green
Inactive
Homestead Status
Inactive
Farmstead Status
Inactive
Lerta Amount
0
Lerta Expiration Year
0
Residential Data
Card 1
Style
OLD STYLE
Basement
PART
Year Built
1900
Exterior Wall
ALUMINUM/VINYL
Total Living Area
2880
Full Baths
2
Half Baths
1
Fuel Type
GAS
Heating
CENTRAL A/C
Heating System
FORCED AIR
Stories
2.0
Total Bedrooms
6
Total Family Rooms
0
Total Rooms
11
Fireplaces
0
Other Buildings & Yards
No OBY Data Found
Sales History
Sale Date
Type
Price
Book / Page
Other Info
6/2/2021
LAND & BUILDING
97700
2021 / 013917
SPECIAL WARRANTY DEED
11/10/2020
LAND & BUILDING
150000
2020 / 024129
SPECIAL WARRANTY DEED
9/18/1969
0
1010 / 0324
9/18/1969
LAND & BUILDING
22000
1010 / 0324
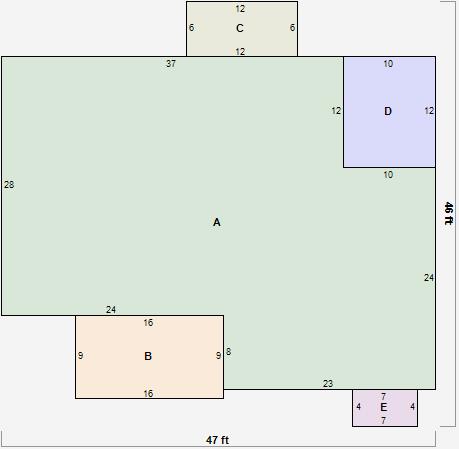
Parcel Sketches
Residential Card 1
A
MAIN
1380 square feet
B
OFP OPEN FRAME PORCH
144 square feet
C
EFP ENCL FRAME PORCH
72 square feet
D
1S FR ONE STORY FRAME
120 square feet
E
OFP OPEN FRAME PORCH
28 square feet
Parcel Images
Please note:
this tab is for informational purposes only and may not show all delinquencies, see the Taxes tab for more accurate delinquent taxes due.