Elected Officials
Courts
Departments
Initiatives
Open Government
About
Login / Register
Home
/
Property & Tax Records
/
Property Records
/
Property & Tax Search
/
Parcel Profile
/
Print View
Search for Another Parcel
Parcel Profile
Historical Card
Sketches
Photos
Tax Map
Taxes
Print View
Print This Page
Address: 328 MEADVILLE ST
Parcel: 11016048007100
Parcel Profile
Address
328 | MEADVILLE | ST
Street Status
PAVED
School District
GENERAL MCLANE SCHOOL
Acreage
1.3300
Classification
R
Land Use Code
SINGLE FAMILY
Legal Description
328 MEADVILLE ST 1.333 AC
Square Feet
1860
Topo
LEVEL
Utility
ALL PUBLIC
Zoning
Please contact your municipal zoning officer
Deed Book
1011
Deed Page
777
2026 Tax Values
Land Value / Taxable
34,500 / 34,500.00
Building Value / Taxable
87,140 / 87,140.00
Total Value / Taxable
121,640 / 121,640.00
Clean & Green
Inactive
Homestead Status
Active
Farmstead Status
Inactive
Lerta Amount
0
Lerta Expiration Year
0
Residential Data
Card 1
Style
OLD STYLE
Basement
FULL
Year Built
1939
Exterior Wall
FRAME
Total Living Area
1860
Full Baths
1
Half Baths
1
Fuel Type
GAS
Heating
CENTRAL
Heating System
FORCED AIR
Stories
2.0
Total Bedrooms
4
Total Family Rooms
1
Total Rooms
7
Fireplaces
0
Other Buildings & Yards
Description
Built
Width
Length
Area
FRAME UTILITY SHED
1975
12
12
144
Sales History
Sale Date
Type
Price
Book / Page
Other Info
5/14/2003
LAND & BUILDING
123000
1011 / 777
WARRANTY/SURVIVORSHIP DEED
8/8/1990
0
0132 / 1915
8/8/1990
LAND & BUILDING
102500
0132 / 1915
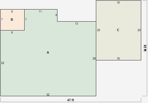
Parcel Sketches
Residential Card 1
A
MAIN
820 square feet
B
OFP OPEN FRAME PORCH 1S FR ONE STORY FRAME
56 square feet
C
FR GR FRAME GARAGE
300 square feet
Parcel Images
Please note:
this tab is for informational purposes only and may not show all delinquencies, see the Taxes tab for more accurate delinquent taxes due.