Elected Officials
Courts
Departments
Initiatives
Open Government
About
Login / Register
Home
/
Property & Tax Records
/
Property Records
/
Property & Tax Search
/
Parcel Profile
/
Print View
Search for Another Parcel
Parcel Profile
Historical Card
Sketches
Photos
Tax Map
Taxes
Print View
Print This Page
Address: 18303 S MAIN ST
Parcel: 12009003000100
Parcel Profile
Address
18303 | S | MAIN | ST
Street Status
PAVED
School District
CORRY AREA SCHOOL
Acreage
0.4568
Classification
R
Land Use Code
TWO FAMILY
Legal Description
18303 S MAIN ST 102.38 X 198.08 IRR
Square Feet
2586
Topo
LEVEL
Utility
GAS | WELL | SEPTIC
Zoning
Please contact your municipal zoning officer
Deed Book
2014
Deed Page
018821
2026 Tax Values
Land Value / Taxable
15,200 / 15,200.00
Building Value / Taxable
65,500 / 65,500.00
Total Value / Taxable
80,700 / 80,700.00
Clean & Green
Inactive
Homestead Status
Inactive
Farmstead Status
Inactive
Lerta Amount
0
Lerta Expiration Year
0
Residential Data
Card 1
Style
OLD STYLE
Basement
FULL
Year Built
1880
Exterior Wall
BLOCK
Total Living Area
2586
Full Baths
2
Half Baths
0
Fuel Type
GAS
Heating
CENTRAL
Heating System
FORCED AIR
Stories
2.0
Total Bedrooms
4
Total Family Rooms
1
Total Rooms
7
Fireplaces
0
Other Buildings & Yards
Description
Built
Width
Length
Area
FRAME OR CB DETACHED GARAGE
2009
20
20
400
Sales History
Sale Date
Type
Price
Book / Page
Other Info
9/5/2014
LAND & BUILDING
34000
2014 / 018821
SPECIAL WARRANTY DEED
6/18/2014
LAND & BUILDING
1558
2014 / 012110
SHERIFF'S DED
12/17/1999
0
0679 / 0308
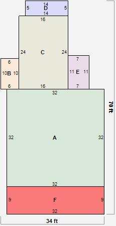
Parcel Sketches
Residential Card 1
A
MAIN
1024 square feet
B
OFP OPEN FRAME PORCH
60 square feet
C
UNFIN BSMT BASEMENT UNFINISHED 1S FR ONE STORY FRAME AT FN ATTIC-FINISHED
384 square feet
D
WDDCK WOOD DECKS
70 square feet
E
OFP OPEN FRAME PORCH
77 square feet
F
EFP ENCL FRAME PORCH
288 square feet
Parcel Images
Please note:
this tab is for informational purposes only and may not show all delinquencies, see the Taxes tab for more accurate delinquent taxes due.