Address: 9859 KIDDER RD   Parcel: 13001014000200
Parcel Profile
Address9859 | KIDDER | RD
Street StatusUNPAVED
School DistrictNORTHWESTERN SCHOOL
Acreage92.3280
ClassificationF
Land Use Code80 ACRES OR MORE
Legal Description9859 KIDDER RD 92.328 AC NET | 94.333 AC GROSS
Square Feet2464
TopoROLLING
UtilityWELL | SEPTIC
ZoningPlease contact your municipal zoning officer
Deed Book2011
Deed Page025509
2025 Tax Values
Land Value / Taxable101,200 / 52,900.00
Building Value / Taxable99,800 / 99,800.00
Total Value / Taxable201,000 / 152,700.00
Clean & GreenActive
Homestead StatusActive
Farmstead StatusActive
Lerta Amount0
Lerta Expiration Year0
Residential Data
Card 1
     StyleOLD STYLE
     BasementPART
     Year Built1840
     Exterior WallALUMINUM/VINYL
     Total Living Area2464
     Full Baths1
     Half Baths1
     Fuel TypeELECTRIC
     HeatingNON CENTRAL
     Heating SystemELECTRIC
     Stories2.0
     Total Bedrooms3
     Total Family Rooms0
     Total Rooms8
     Fireplaces0
Other Buildings & Yards
DescriptionBuiltWidthLengthArea
 FOUR SIDE WD POLE BLDG 1900 12 40 480
 FOUR SIDE OPEN MTL POLE BLDG 1970 50 96 4800
 ONE SIDE OPEN MTL POLE BLDG 1970 30 96 2880
 ONE SIDE OPEN MTL POLE BLDG 1965 30 40 1200
 FOUR SIDE CLOSED MTL POLE BLDG 1970 20 30 600
 FOUR SIDE CLOSED MTL POLE BLDG 1965 90 30 2700
 FOUR SIDE CLOSED MTL POLE BLDG 1965 28 50 1400
 ONE SIDE OPEN WD POLE BLDG 1920 11 24 264
 FLAT BARN ADDITION 1875 12 10 120
 ATTACHED CB MILK HOUSE 1900 22 16 352
 FLAT BARN 1815 46 44 2024
 FLAT BARN ADDITION 1960 16 46 736
Sales History
Sale DateTypePriceBook / PageOther Info
10/25/2011LAND & BUILDING02011 / 025509CORRECTIVE DEED
1/27/2011LAND & BUILDING02011 / 002365CORRECTIVE DEED
6/11/2007LAND & BUILDING01422 / 0171QUIT CLAIM DEED
5/2/1964 00895 / 0012 



Parcel Sketches

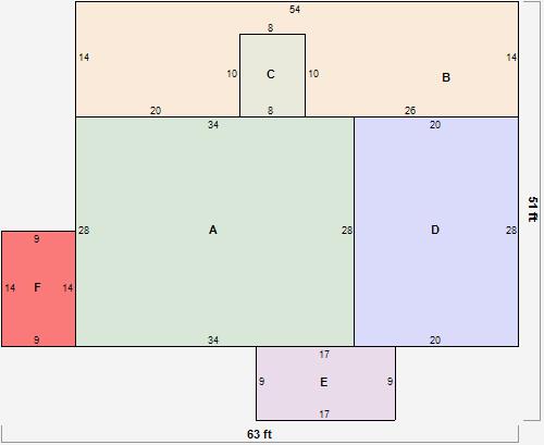
Residential Card 1

Residential Card 1
AMAIN952 square feet
B OFP OPEN FRAME PORCH 676 square feet
C EFP ENCL FRAME PORCH 80 square feet
D 1S FR ONE STORY FRAME AT UN ATTIC-UNFINISHED 560 square feet
E MA STOOP/TERR MAS STOOP 153 square feet
F OFP OPEN FRAME PORCH 126 square feet

Parcel Images

parcel photoparcel photoparcel photoparcel photoparcel photoparcel photo