Elected Officials
Courts
Departments
Initiatives
Open Government
About
Login / Register
Home
/
Property & Tax Records
/
Property Records
/
Property & Tax Search
/
Parcel Profile
/
Print View
Search for Another Parcel
Parcel Profile
Historical Card
Sketches
Photos
Tax Map
Taxes
Print View
Print This Page
Address: 10324 ROUTE 18
Parcel: 13012023000700
Parcel Profile
Address
10324 | ROUTE 18
Street Status
PAVED
School District
NORTHWESTERN SCHOOL
Acreage
0.3495
Classification
R
Land Use Code
SINGLE FAMILY
Legal Description
10324 ROUTE 18 87 X 175
Square Feet
1308
Topo
LEVEL
Utility
GAS | WELL
Zoning
Please contact your municipal zoning officer
Deed Book
2021
Deed Page
021415
2026 Tax Values
Land Value / Taxable
18,700 / 18,700.00
Building Value / Taxable
21,500 / 21,500.00
Total Value / Taxable
40,200 / 40,200.00
Clean & Green
Inactive
Homestead Status
Inactive
Farmstead Status
Inactive
Lerta Amount
0
Lerta Expiration Year
0
Residential Data
Card 1
Style
OLD STYLE
Basement
PART
Year Built
1900
Exterior Wall
COMPOSITION
Total Living Area
1308
Full Baths
1
Half Baths
0
Fuel Type
GAS
Heating
CENTRAL
Heating System
FORCED AIR
Stories
1.5
Total Bedrooms
3
Total Family Rooms
0
Total Rooms
8
Fireplaces
0
Other Buildings & Yards
No OBY Data Found
Sales History
Sale Date
Type
Price
Book / Page
Other Info
8/11/2021
LAND & BUILDING
8500
2021 / 021415
SPECIAL WARRANTY DEED
4/13/2017
LAND & BUILDING
0
2017 / 007572
SPECIAL WARRANTY DEED
12/22/1977
0
1291 / 0295
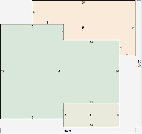
Parcel Sketches
Residential Card 1
A
MAIN
608 square feet
B
UNFIN BSMT BASEMENT UNFINISHED 1S FR ONE STORY FRAME
244 square feet
C
OFP OPEN FRAME PORCH
84 square feet
Parcel Images