Elected Officials
Courts
Departments
Initiatives
Open Government
About
Login / Register
Home
/
Property & Tax Records
/
Property Records
/
Property & Tax Search
/
Parcel Profile
/
Print View
Search for Another Parcel
Parcel Profile
Historical Card
Sketches
Photos
Tax Map
Taxes
Print View
Print This Page
Address: 7301 ROUTE 6N
Parcel: 13018033000200
Parcel Profile
Address
7301 | ROUTE 6N
Street Status
PAVED
School District
NORTHWESTERN SCHOOL
Acreage
92.6400
Classification
F
Land Use Code
80 ACRES OR MORE
Legal Description
7301 ROUTE 6N LOT 2 92.64 AC | MB 29-180
Square Feet
1620
Topo
ROLLING
Utility
GAS | WELL | SEPTIC
Zoning
Please contact your municipal zoning officer
Deed Book
2020
Deed Page
001940
2026 Tax Values
Land Value / Taxable
145,200 / 46,100.00
Building Value / Taxable
60,100 / 60,100.00
Total Value / Taxable
205,300 / 106,200.00
Clean & Green
Active
Homestead Status
Active
Farmstead Status
Inactive
Lerta Amount
0
Lerta Expiration Year
0
Residential Data
Card 1
Style
OLD STYLE
Basement
PART
Year Built
1820
Exterior Wall
FRAME
Total Living Area
1620
Full Baths
1
Half Baths
0
Fuel Type
OIL
Heating
CENTRAL
Heating System
FORCED AIR
Stories
1.5
Total Bedrooms
2
Total Family Rooms
1
Total Rooms
6
Fireplaces
0
Other Buildings & Yards
Description
Built
Width
Length
Area
ATTACHED CB MILK HOUSE
1950
14
16
224
CONCRETE STAVE WITH ROOF
1950
14
30
4616
FRAME UTILITY SHED
1950
12
24
288
Sales History
Sale Date
Type
Price
Book / Page
Other Info
1/31/2020
LAND & BUILDING
250000
2020 / 001940
FIDUCIARY DEED
12/1/2005
LAND & BUILDING
0
1291 / 0509
QUIT CLAIM DEED
11/19/1971
0
1057 / 0278
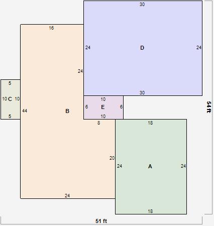
Parcel Sketches
Residential Card 1
A
MAIN
432 square feet
B
UNFIN BSMT BASEMENT UNFINISHED 1S FR ONE STORY FRAME
864 square feet
C
OFP OPEN FRAME PORCH
50 square feet
D
FR GR FRAME GARAGE
720 square feet
E
EFP ENCL FRAME PORCH
60 square feet
Parcel Images
Please note:
this tab is for informational purposes only and may not show all delinquencies, see the Taxes tab for more accurate delinquent taxes due.