Elected Officials
Courts
Departments
Initiatives
Open Government
About
Login / Register
Home
/
Property & Tax Records
/
Property Records
/
Property & Tax Search
/
Parcel Profile
/
Print View
Search for Another Parcel
Parcel Profile
Historical Card
Sketches
Photos
Tax Map
Taxes
Print View
Print This Page
Address: 7187 ROUTE 6N
Parcel: 13018033000300
Parcel Profile
Address
7187 | ROUTE 6N
Street Status
PAVED
School District
NORTHWESTERN SCHOOL
Acreage
100.0000
Classification
F
Land Use Code
80 ACRES OR MORE
Legal Description
7187 ROUTE 6N 100 AC
Square Feet
2448
Topo
ROLLING
Utility
GAS | WELL | SEPTIC
Zoning
Please contact your municipal zoning officer
Deed Book
1538
Deed Page
1779
2026 Tax Values
Land Value / Taxable
157,700 / 157,700.00
Building Value / Taxable
89,200 / 89,200.00
Total Value / Taxable
246,900 / 246,900.00
Clean & Green
Inactive
Homestead Status
Active
Farmstead Status
Active
Lerta Amount
0
Lerta Expiration Year
0
Residential Data
Card 1
Style
OLD STYLE
Basement
FULL
Year Built
1900
Exterior Wall
ALUMINUM/VINYL
Total Living Area
2448
Full Baths
1
Half Baths
1
Fuel Type
GAS
Heating
CENTRAL
Heating System
FORCED AIR
Stories
2.0
Total Bedrooms
3
Total Family Rooms
0
Total Rooms
8
Fireplaces
0
Other Buildings & Yards
Description
Built
Width
Length
Area
FOUR SIDE CLOSED MTL POLE BLDG
1981
40
84
3360
BANK BARN
1900
50
70
3500
ATTACHED CB MILK HOUSE
1950
18
20
360
BANK BARN
1930
20
40
800
BANK BARN ADDITION
1950
8
16
128
Sales History
Sale Date
Type
Price
Book / Page
Other Info
1/8/2009
LAND & BUILDING
0
1538 / 1779
WARRANTY/SURVIVORSHIP DEED
7/8/2004
LAND & BUILDING
0
1152 / 1449
WARRANTY/SURVIVORSHIP DEED
6/8/1967
0
0962 / 0439
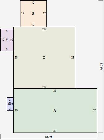
Parcel Sketches
Residential Card 1
A
MAIN
760 square feet
B
1S FR ONE STORY FRAME
144 square feet
C
1S FR ONE STORY FRAME
784 square feet
D
OFP OPEN FRAME PORCH
18 square feet
E
OFP OPEN FRAME PORCH
60 square feet
Parcel Images
Please note:
this tab is for informational purposes only and may not show all delinquencies, see the Taxes tab for more accurate delinquent taxes due.