Elected Officials
Courts
Departments
Initiatives
Open Government
About
Login / Register
Home
/
Property & Tax Records
/
Property Records
/
Property & Tax Search
/
Parcel Profile
/
Print View
Search for Another Parcel
Parcel Profile
Historical Card
Sketches
Photos
Tax Map
Taxes
Print View
Print This Page
Address: 10663 PONT RD
Parcel: 13025038002700
Parcel Profile
Address
10663 | PONT | RD
Street Status
PAVED
School District
NORTHWESTERN SCHOOL
Acreage
52.1100
Classification
R
Land Use Code
MULTIPLE DWELLINGS
Legal Description
10663 PONT RD 52.11 AC
Square Feet
3997
Topo
ABOVE STREET | ROLLING
Utility
GAS | WELL | SEPTIC
Zoning
Please contact your municipal zoning officer
Deed Book
0176
Deed Page
0107
2026 Tax Values
Land Value / Taxable
88,100 / 36,500.00
Building Value / Taxable
131,400 / 131,400.00
Total Value / Taxable
219,500 / 167,900.00
Clean & Green
Active
Homestead Status
Active
Farmstead Status
Inactive
Lerta Amount
0
Lerta Expiration Year
0
Residential Data
Card 1
Style
OLD STYLE
Basement
PART
Year Built
1867
Exterior Wall
FRAME
Total Living Area
1580
Full Baths
1
Half Baths
0
Fuel Type
NONE
Heating
NONE
Heating System
NONE
Stories
2.0
Total Bedrooms
3
Total Family Rooms
0
Total Rooms
6
Fireplaces
0
Card 2
Style
CONVENTIONAL
Basement
FULL
Year Built
1993
Exterior Wall
FRAME
Total Living Area
2417
Full Baths
1
Half Baths
1
Fuel Type
GAS
Heating
CENTRAL
Heating System
FORCED AIR
Stories
1.0
Total Bedrooms
3
Total Family Rooms
1
Total Rooms
8
Fireplaces
1
Other Buildings & Yards
Description
Built
Width
Length
Area
FOUR SIDE CLOSED WD POLE BLDG
2019
24
40
960
Sales History
Sale Date
Type
Price
Book / Page
Other Info
9/11/1991
0
0176 / 0107
Parcel Sketches
Residential Card 1
A
MAIN
520 square feet
B
OFP OPEN FRAME PORCH
128 square feet
C
UNFIN BSMT BASEMENT UNFINISHED 1S FR ONE STORY FRAME AT UN ATTIC-UNFINISHED
540 square feet
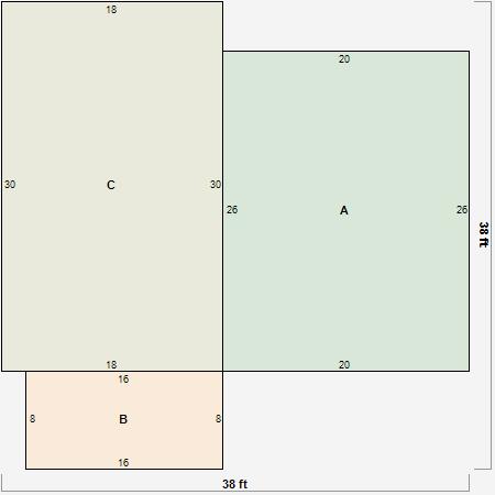
Residential Card 2
A
MAIN
1724 square feet
B
UNFIN BSMT BASEMENT UNFINISHED 1S FR ONE STORY FRAME AT FN ATTIC-FINISHED
352 square feet
C
OFP OPEN FRAME PORCH
32 square feet
D
UNFIN BSMT BASEMENT UNFINISHED 1S FR ONE STORY FRAME
200 square feet
E
FR GR FRAME GARAGE
630 square feet
Parcel Images
Please note:
this tab is for informational purposes only and may not show all delinquencies, see the Taxes tab for more accurate delinquent taxes due.