Elected Officials
Courts
Departments
Initiatives
Open Government
About
Login / Register
Home
/
Property & Tax Records
/
Property Records
/
Property & Tax Search
/
Parcel Profile
/
Print View
Search for Another Parcel
Parcel Profile
Historical Card
Sketches
Photos
Tax Map
Taxes
Print View
Print This Page
Address: 9735 MOSES RD
Parcel: 13027044000500
Parcel Profile
Address
9735 | MOSES | RD
Street Status
UNPAVED
School District
NORTHWESTERN SCHOOL
Acreage
43.8000
Classification
F
Land Use Code
20 - 79.99 ACRES
Legal Description
9735 MOSES RD 4.45 (ERIE) + 39.35 AC (CRAWFORD)
Square Feet
2148
Topo
ROLLING
Utility
GAS | WELL | SEPTIC
Zoning
Please contact your municipal zoning officer
Deed Book
0447
Deed Page
1827
2025 Tax Values
Land Value / Taxable
61,500 / 61,500.00
Building Value / Taxable
94,610 / 94,610.00
Total Value / Taxable
156,110 / 156,110.00
Clean & Green
Inactive
Homestead Status
Active
Farmstead Status
Inactive
Lerta Amount
0
Lerta Expiration Year
0
Residential Data
Card 1
Style
RANCH
Basement
FULL
Year Built
1900
Exterior Wall
COMPOSITION
Total Living Area
2148
Full Baths
1
Half Baths
1
Fuel Type
GAS
Heating
CENTRAL A/C
Heating System
FORCED AIR
Stories
1.0
Total Bedrooms
3
Total Family Rooms
0
Total Rooms
6
Fireplaces
1
Other Buildings & Yards
Description
Built
Width
Length
Area
FLAT BARN
1989
24
30
720
FOUR SIDE CLOSED WD POLE BLDG
1957
30
40
1200
Sales History
Sale Date
Type
Price
Book / Page
Other Info
6/27/1996
LAND & BUILDING
128000
0447 / 1827
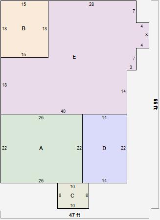
Parcel Sketches
Residential Card 1
A
MAIN
572 square feet
B
OFP OPEN FRAME PORCH
270 square feet
C
OFP OPEN FRAME PORCH
80 square feet
D
1S FR ONE STORY FRAME
308 square feet
E
1S FR ONE STORY FRAME
1268 square feet
Parcel Images