Elected Officials
Courts
Departments
Initiatives
Open Government
About
Login / Register
Home
/
Property & Tax Records
/
Property Records
/
Property & Tax Search
/
Parcel Profile
/
Print View
Search for Another Parcel
Parcel Profile
Historical Card
Sketches
Photos
Tax Map
Taxes
Print View
Print This Page
Address: 632 34 GERMAN ST
Parcel: 14010007020000
Parcel Profile
Address
632 | 34 | GERMAN | ST
Street Status
PAVED | SIDEWALK
School District
CITY OF ERIE SCHOOL
Acreage
0.0723
Classification
R
Land Use Code
TWO FAMILY
Legal Description
632 34 GERMAN ST 35 X 90
Square Feet
1880
Topo
LEVEL
Utility
ALL PUBLIC
Zoning
Please contact your municipal zoning officer
Deed Book
1167
Deed Page
0820
2026 Tax Values
Land Value / Taxable
6,600 / 6,600.00
Building Value / Taxable
18,170 / 18,170.00
Total Value / Taxable
24,770 / 24,770.00
Clean & Green
Inactive
Homestead Status
Inactive
Farmstead Status
Inactive
Lerta Amount
0
Lerta Expiration Year
0
Residential Data
Card 1
Style
OLD STYLE
Basement
FULL
Year Built
1882
Exterior Wall
COMPOSITION
Total Living Area
1880
Full Baths
2
Half Baths
0
Fuel Type
GAS
Heating
CENTRAL
Heating System
FORCED AIR
Stories
2.0
Total Bedrooms
6
Total Family Rooms
2
Total Rooms
12
Fireplaces
0
Other Buildings & Yards
No OBY Data Found
Sales History
Sale Date
Type
Price
Book / Page
Other Info
8/25/2004
LAND & BUILDING
12000
1167 / 0820
DEED
4/19/2004
LAND & BUILDING
0
1126 / 0571
SHERIFF'S DED
2/3/2000
LAND & BUILDING
0
686 / 778
9/17/1996
0
0461 / 1503
2/28/1994
0
0310 / 0199
7/23/1990
0
0130 / 1824
2/15/1967
0
0956 / 0150
9/16/1958
0
0782 / 0077
12/3/1956
0
0746 / 0506
4/20/1956
0
0721 / 0268
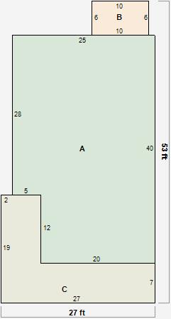
Parcel Sketches
Residential Card 1
A
MAIN
940 square feet
B
EFP ENCL FRAME PORCH
60 square feet
C
OFP OPEN FRAME PORCH
273 square feet
Parcel Images