Elected Officials
Courts
Departments
Initiatives
Open Government
About
Login / Register
Home
/
Property & Tax Records
/
Property Records
/
Property & Tax Search
/
Parcel Profile
/
Print View
Search for Another Parcel
Parcel Profile
Historical Card
Sketches
Photos
Tax Map
Taxes
Print View
Print This Page
Address: 320 E 7 ST
Parcel: 14010010023400
Parcel Profile
Address
320 | E | 7 | ST
Street Status
PAVED | SIDEWALK
School District
CITY OF ERIE SCHOOL
Acreage
0.1431
Classification
R
Land Use Code
SINGLE FAMILY
Legal Description
320 E 7 ST 37.77 X 165
Square Feet
1707
Topo
LEVEL
Utility
ALL PUBLIC
Zoning
Please contact your municipal zoning officer
Deed Book
2010
Deed Page
015860
2026 Tax Values
Land Value / Taxable
7,700 / 7,700.00
Building Value / Taxable
27,200 / 27,200.00
Total Value / Taxable
34,900 / 34,900.00
Clean & Green
Inactive
Homestead Status
Active
Farmstead Status
Inactive
Lerta Amount
0
Lerta Expiration Year
0
Residential Data
Card 1
Style
OLD STYLE
Basement
FULL
Year Built
1892
Exterior Wall
COMPOSITION
Total Living Area
1707
Full Baths
2
Half Baths
0
Fuel Type
GAS
Heating
CENTRAL
Heating System
FORCED AIR
Stories
2.0
Total Bedrooms
2
Total Family Rooms
0
Total Rooms
5
Fireplaces
0
Other Buildings & Yards
Description
Built
Width
Length
Area
FRAME OR CB DETACHED GARAGE
1910
20
40
800
Sales History
Sale Date
Type
Price
Book / Page
Other Info
6/30/2010
LAND & BUILDING
29900
2010 / 015860
SPECIAL WARRANTY DEED
10/29/2003
LAND & BUILDING
5200
1080 / 2189
DEED
3/18/1976
LAND & BUILDING
20000
1204 / 177
3/18/1976
0
1204 / 0177
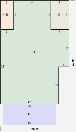
Parcel Sketches
Residential Card 1
A
MAIN
826 square feet
B
1S FR ONE STORY FRAME
55 square feet
C
OFP OPEN FRAME PORCH
77 square feet
D
OMP OPEN MASONRY PORCH
160 square feet
Parcel Images
Please note:
this tab is for informational purposes only and may not show all delinquencies, see the Taxes tab for more accurate delinquent taxes due.