Elected Officials
Courts
Departments
Initiatives
Open Government
About
Login / Register
Home
/
Property & Tax Records
/
Property Records
/
Property & Tax Search
/
Parcel Profile
/
Print View
Search for Another Parcel
Parcel Profile
Historical Card
Sketches
Photos
Tax Map
Taxes
Print View
Print This Page
Address: 328 E 7 ST
Parcel: 14010010023600
Parcel Profile
Address
328 | E | 7 | ST
Street Status
PAVED | SIDEWALK
School District
CITY OF ERIE SCHOOL
Acreage
0.1431
Classification
R
Land Use Code
SINGLE FAMILY
Legal Description
328 E 7 ST 37.77 X 165
Square Feet
1841
Topo
LEVEL
Utility
ALL PUBLIC
Zoning
Please contact your municipal zoning officer
Deed Book
2023
Deed Page
020358
2026 Tax Values
Land Value / Taxable
7,300 / 7,300.00
Building Value / Taxable
26,870 / 26,870.00
Total Value / Taxable
34,170 / 34,170.00
Clean & Green
Inactive
Homestead Status
Inactive
Farmstead Status
Inactive
Lerta Amount
0
Lerta Expiration Year
0
Residential Data
Card 1
Style
OLD STYLE
Basement
FULL
Year Built
1920
Exterior Wall
ALUMINUM/VINYL
Total Living Area
1841
Full Baths
1
Half Baths
0
Fuel Type
GAS
Heating
CENTRAL
Heating System
FORCED AIR
Stories
2.0
Total Bedrooms
4
Total Family Rooms
0
Total Rooms
8
Fireplaces
0
Other Buildings & Yards
No OBY Data Found
Sales History
Sale Date
Type
Price
Book / Page
Other Info
11/22/2023
LAND & BUILDING
52900
2023 / 020358
SPECIAL WARRANTY DEED
4/25/2006
LAND & BUILDING
19000
1322 / 0928
DEED
1/20/2006
LAND & BUILDING
0
1301 / 1125
SHERIFF'S DED
4/18/2001
LAND & BUILDING
31500
766 / 2280
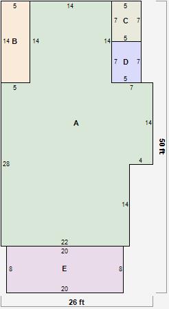
Parcel Sketches
Residential Card 1
A
MAIN
868 square feet
B
1S FR ONE STORY FRAME
70 square feet
C
EFP ENCL FRAME PORCH
35 square feet
D
1S FR ONE STORY FRAME
35 square feet
E
OFP OPEN FRAME PORCH
160 square feet
Parcel Images