Elected Officials
Courts
Departments
Initiatives
Open Government
About
Login / Register
Home
/
Property & Tax Records
/
Property Records
/
Property & Tax Search
/
Parcel Profile
/
Print View
Search for Another Parcel
Parcel Profile
Historical Card
Sketches
Photos
Tax Map
Taxes
Print View
Print This Page
Address: 420 PARADE ST
Parcel: 14010011020300
Parcel Profile
Address
420 | PARADE | ST
Street Status
PAVED | SIDEWALK
School District
CITY OF ERIE SCHOOL
Acreage
0.1102
Classification
R
Land Use Code
SINGLE FAMILY
Legal Description
420 PARADE ST 40 X 120
Square Feet
792
Topo
LEVEL
Utility
ALL PUBLIC
Zoning
Please contact your municipal zoning officer
Deed Book
2019
Deed Page
015824
2026 Tax Values
Land Value / Taxable
7,400 / 7,400.00
Building Value / Taxable
29,540 / 29,540.00
Total Value / Taxable
36,940 / 36,940.00
Clean & Green
Inactive
Homestead Status
Inactive
Farmstead Status
Inactive
Lerta Amount
0
Lerta Expiration Year
0
Residential Data
Card 1
Style
BUNGALOW
Basement
FULL
Year Built
1974
Exterior Wall
ALUMINUM/VINYL
Total Living Area
792
Full Baths
1
Half Baths
0
Fuel Type
GAS
Heating
CENTRAL
Heating System
FORCED AIR
Stories
1.0
Total Bedrooms
2
Total Family Rooms
0
Total Rooms
4
Fireplaces
0
Other Buildings & Yards
No OBY Data Found
Sales History
Sale Date
Type
Price
Book / Page
Other Info
8/13/2019
LAND & BUILDING
0
2019 / 015824
DEED
10/14/2011
LAND & BUILDING
35000
2011 / 024606
DEED
9/27/1999
LAND & BUILDING
25900
664 / 1358
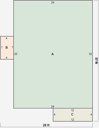
Parcel Sketches
Residential Card 1
A
MAIN
792 square feet
B
MA STOOP/TERR MAS STOOP
28 square feet
C
OFP OPEN FRAME PORCH
48 square feet
Parcel Images
Please note:
this tab is for informational purposes only and may not show all delinquencies, see the Taxes tab for more accurate delinquent taxes due.