Elected Officials
Courts
Departments
Initiatives
Open Government
About
Login / Register
Home
/
Property & Tax Records
/
Property Records
/
Property & Tax Search
/
Parcel Profile
/
Print View
Search for Another Parcel
Parcel Profile
Historical Card
Sketches
Photos
Tax Map
Taxes
Print View
Print This Page
Address: 216 PARADE ST
Parcel: 14010012020400
Parcel Profile
Address
216 | PARADE | ST
Street Status
PAVED | SIDEWALK
School District
CITY OF ERIE SCHOOL
Acreage
0.0923
Classification
R
Land Use Code
SINGLE FAMILY
Legal Description
216 PARADE ST 32.5 X 123.75
Square Feet
1466
Topo
LEVEL
Utility
ALL PUBLIC
Zoning
Please contact your municipal zoning officer
Deed Book
0781
Deed Page
1944
2026 Tax Values
Land Value / Taxable
7,000 / 7,000.00
Building Value / Taxable
28,500 / 28,500.00
Total Value / Taxable
35,500 / 35,500.00
Clean & Green
Inactive
Homestead Status
Active
Farmstead Status
Inactive
Lerta Amount
0
Lerta Expiration Year
0
Residential Data
Card 1
Style
OLD STYLE
Basement
FULL
Year Built
1897
Exterior Wall
ALUMINUM/VINYL
Total Living Area
1466
Full Baths
1
Half Baths
0
Fuel Type
GAS
Heating
CENTRAL
Heating System
FORCED AIR
Stories
2.0
Total Bedrooms
4
Total Family Rooms
0
Total Rooms
7
Fireplaces
0
Other Buildings & Yards
No OBY Data Found
Sales History
Sale Date
Type
Price
Book / Page
Other Info
6/8/2001
0
0781 / 1944
6/8/2001
LAND & BUILDING
0
0781 / 1944
TAX DEED
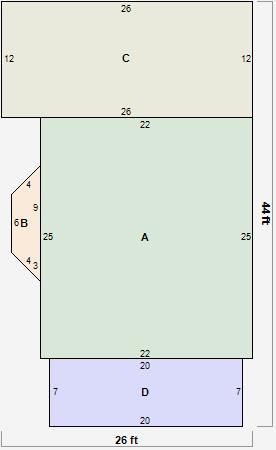
Parcel Sketches
Residential Card 1
A
MAIN
550 square feet
B
UNFIN BSMT BASEMENT UNFINISHED FRBAY FRAME BAY FRBAY FRAME BAY
27 square feet
C
UNFIN BSMT BASEMENT UNFINISHED 1S FR ONE STORY FRAME
312 square feet
D
OFP OPEN FRAME PORCH
140 square feet
Parcel Images