Elected Officials
Courts
Departments
Initiatives
Open Government
About
Login / Register
Home
/
Property & Tax Records
/
Property Records
/
Property & Tax Search
/
Parcel Profile
/
Print View
Search for Another Parcel
Parcel Profile
Historical Card
Sketches
Photos
Tax Map
Taxes
Print View
Print This Page
Address: 202 PARADE ST
Parcel: 14010012020800
Parcel Profile
Address
202 | PARADE | ST
Street Status
PAVED | SIDEWALK
School District
CITY OF ERIE SCHOOL
Acreage
0.0514
Classification
R
Land Use Code
TWO FAMILY
Legal Description
202 PARADE ST 41.25 X 54.25
Square Feet
1862
Topo
LEVEL
Utility
ALL PUBLIC
Zoning
Please contact your municipal zoning officer
Deed Book
2017
Deed Page
012480
2026 Tax Values
Land Value / Taxable
6,100 / 6,100.00
Building Value / Taxable
24,200 / 24,200.00
Total Value / Taxable
30,300 / 30,300.00
Clean & Green
Inactive
Homestead Status
Inactive
Farmstead Status
Inactive
Lerta Amount
0
Lerta Expiration Year
0
Residential Data
Card 1
Style
OLD STYLE
Basement
FULL
Year Built
1892
Exterior Wall
ALUMINUM/VINYL
Total Living Area
1862
Full Baths
2
Half Baths
0
Fuel Type
GAS
Heating
CENTRAL
Heating System
FORCED AIR
Stories
2.0
Total Bedrooms
4
Total Family Rooms
0
Total Rooms
10
Fireplaces
0
Other Buildings & Yards
No OBY Data Found
Sales History
Sale Date
Type
Price
Book / Page
Other Info
6/16/2017
LAND & BUILDING
679300
2017 / 012480
SPECIAL WARRANTY DEED
9/30/2003
LAND & BUILDING
0
1070 / 269
SPECIAL WARRANTY DEED
10/19/1998
LAND & BUILDING
0
594 / 1205
AFFIDAVIT
10/19/1998
0
0594 / 1205
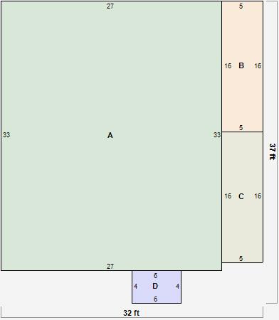
Parcel Sketches
Residential Card 1
A
MAIN
891 square feet
B
UNFIN BSMT BASEMENT UNFINISHED 1S FR ONE STORY FRAME
80 square feet
C
OFP OPEN FRAME PORCH
80 square feet
D
MA STOOP/TERR MAS STOOP CANPY CANOPY
24 square feet
Parcel Images
Please note:
this tab is for informational purposes only and may not show all delinquencies, see the Taxes tab for more accurate delinquent taxes due.