Elected Officials
Courts
Departments
Initiatives
Open Government
About
Login / Register
Home
/
Property & Tax Records
/
Property Records
/
Property & Tax Search
/
Parcel Profile
/
Print View
Search for Another Parcel
Parcel Profile
Historical Card
Sketches
Photos
Tax Map
Taxes
Print View
Print This Page
Address: 429 E 7 ST
Parcel: 14010013020800
Parcel Profile
Address
429 | E | 7 | ST
Street Status
PAVED | SIDEWALK
School District
CITY OF ERIE SCHOOL
Acreage
0.0661
Classification
R
Land Use Code
SINGLE FAMILY
Legal Description
429 E 7 ST 26.17 X 110
Square Feet
1576
Topo
LEVEL
Utility
ALL PUBLIC
Zoning
Please contact your municipal zoning officer
Deed Book
1215
Deed Page
1119
2026 Tax Values
Land Value / Taxable
6,400 / 6,400.00
Building Value / Taxable
21,060 / 21,060.00
Total Value / Taxable
27,460 / 27,460.00
Clean & Green
Inactive
Homestead Status
Inactive
Farmstead Status
Inactive
Lerta Amount
0
Lerta Expiration Year
0
Residential Data
Card 1
Style
OLD STYLE
Basement
FULL
Year Built
1902
Exterior Wall
FRAME
Total Living Area
1576
Full Baths
1
Half Baths
0
Fuel Type
GAS
Heating
CENTRAL
Heating System
FORCED AIR
Stories
2.0
Total Bedrooms
3
Total Family Rooms
0
Total Rooms
6
Fireplaces
0
Other Buildings & Yards
No OBY Data Found
Sales History
Sale Date
Type
Price
Book / Page
Other Info
3/7/2005
LAND & BUILDING
0
1215 / 1119
DEED
5/8/2000
0
702 / 792
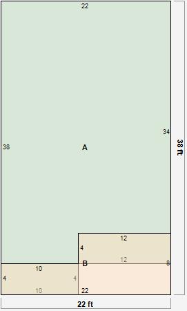
Parcel Sketches
Residential Card 1
A
MAIN
788 square feet
B
OFP OPEN FRAME PORCH
136 square feet
Parcel Images
Please note:
this tab is for informational purposes only and may not show all delinquencies, see the Taxes tab for more accurate delinquent taxes due.