Elected Officials
Courts
Departments
Initiatives
Open Government
About
Login / Register
Home
/
Property & Tax Records
/
Property Records
/
Property & Tax Search
/
Parcel Profile
/
Print View
Search for Another Parcel
Parcel Profile
Historical Card
Sketches
Photos
Tax Map
Taxes
Print View
Print This Page
Address: 451 E 5 ST
Parcel: 14010014010700
Parcel Profile
Address
451 | E | 5 | ST
Street Status
PAVED | ALLEY
School District
CITY OF ERIE SCHOOL
Acreage
0.1446
Classification
R
Land Use Code
SINGLE FAMILY
Legal Description
451 E 5 ST 40 X 157.5
Square Feet
1040
Topo
LEVEL
Utility
ALL PUBLIC
Zoning
Please contact your municipal zoning officer
Deed Book
2025
Deed Page
007458
2025 Tax Values
Land Value / Taxable
7,700 / 7,700.00
Building Value / Taxable
20,800 / 20,800.00
Total Value / Taxable
28,500 / 28,500.00
Clean & Green
Inactive
Homestead Status
Active
Farmstead Status
Inactive
Lerta Amount
0
Lerta Expiration Year
0
Residential Data
Card 1
Style
OLD STYLE
Basement
PART
Year Built
1877
Exterior Wall
COMPOSITION
Total Living Area
1040
Full Baths
2
Half Baths
0
Fuel Type
GAS
Heating
CENTRAL A/C
Heating System
FORCED AIR
Stories
1.5
Total Bedrooms
3
Total Family Rooms
0
Total Rooms
6
Fireplaces
0
Other Buildings & Yards
Description
Built
Width
Length
Area
FRAME OR CB DETACHED GARAGE
1935
20
38
760
Sales History
Sale Date
Type
Price
Book / Page
Other Info
5/9/2025
LAND & BUILDING
32000
2025 / 007457
SPECIAL WARRANTY DEED
5/9/2025
LAND & BUILDING
40000
2025 / 007458
SPECIAL WARRANTY DEED
2/22/2022
LAND & BUILDING
0
2022 / 003711
QUIT CLAIM DEED
4/1/2011
LAND & BUILDING
30000
2011 / 007530
DEED
3/30/1950
LAND & BUILDING
0
560 / 427
3/30/1950
0
0560 / 0427
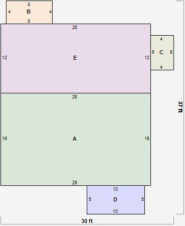
Parcel Sketches
Residential Card 1
A
MAIN
416 square feet
B
EFP ENCL FRAME PORCH
32 square feet
C
OFP OPEN FRAME PORCH
24 square feet
D
OFP OPEN FRAME PORCH
50 square feet
E
1S FR ONE STORY FRAME AT UN ATTIC-UNFINISHED
312 square feet
Parcel Images