Elected Officials
Courts
Departments
Initiatives
Open Government
About
Login / Register
Home
/
Property & Tax Records
/
Property Records
/
Property & Tax Search
/
Parcel Profile
/
Print View
Search for Another Parcel
Parcel Profile
Historical Card
Sketches
Photos
Tax Map
Taxes
Print View
Print This Page
Address: 405 PARADE ST
Parcel: 14010014022100
Parcel Profile
Address
405 | PARADE | ST
Street Status
PAVED | SIDEWALK
School District
CITY OF ERIE SCHOOL
Acreage
0.0579
Classification
R
Land Use Code
SINGLE FAMILY
Legal Description
405 PARADE ST 35 X 72
Square Feet
1909
Topo
LEVEL
Utility
ALL PUBLIC
Zoning
Please contact your municipal zoning officer
Deed Book
1336
Deed Page
0192
2026 Tax Values
Land Value / Taxable
6,300 / 6,300.00
Building Value / Taxable
35,000 / 35,000.00
Total Value / Taxable
41,300 / 41,300.00
Clean & Green
Inactive
Homestead Status
Active
Farmstead Status
Inactive
Lerta Amount
0
Lerta Expiration Year
0
Residential Data
Card 1
Style
OLD STYLE
Basement
FULL
Year Built
1899
Exterior Wall
ALUMINUM/VINYL
Total Living Area
1909
Full Baths
1
Half Baths
0
Fuel Type
GAS
Heating
CENTRAL
Heating System
FORCED AIR
Stories
1.5
Total Bedrooms
2
Total Family Rooms
0
Total Rooms
6
Fireplaces
0
Other Buildings & Yards
No OBY Data Found
Sales History
Sale Date
Type
Price
Book / Page
Other Info
6/12/2006
LAND & BUILDING
52000
1336 / 0192
CORPORATE DEED
9/19/2005
LAND & BUILDING
9900
1270 / 2261
SPECIAL WARRANTY DEED
7/21/2005
LAND & BUILDING
0
1253 / 0790
SHERIFF'S DED
3/13/1972
0
1014 / 0221
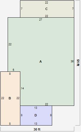
Parcel Sketches
Residential Card 1
A
MAIN
902 square feet
B
UNFIN BSMT BASEMENT UNFINISHED 1S FR ONE STORY FRAME
176 square feet
C
UNFIN BSMT BASEMENT UNFINISHED 1S FR ONE STORY FRAME
154 square feet
D
WDDCK WOOD DECKS
104 square feet
Parcel Images
Please note:
this tab is for informational purposes only and may not show all delinquencies, see the Taxes tab for more accurate delinquent taxes due.