Elected Officials
Courts
Departments
Initiatives
Open Government
About
Login / Register
Home
/
Property & Tax Records
/
Property Records
/
Property & Tax Search
/
Parcel Profile
/
Print View
Search for Another Parcel
Parcel Profile
Historical Card
Sketches
Photos
Tax Map
Taxes
Print View
Print This Page
Address: 431 PARADE ST
Parcel: 14010014022700
Parcel Profile
Address
431 | PARADE | ST
Street Status
PAVED | SIDEWALK
School District
CITY OF ERIE SCHOOL
Acreage
0.1079
Classification
R
Land Use Code
THREE FAMILY
Legal Description
431 PARADE ST 47 X 100
Square Feet
3899
Topo
LEVEL
Utility
ALL PUBLIC
Zoning
Please contact your municipal zoning officer
Deed Book
2021
Deed Page
013869
2026 Tax Values
Land Value / Taxable
7,400 / 7,400.00
Building Value / Taxable
50,890 / 50,890.00
Total Value / Taxable
58,290 / 58,290.00
Clean & Green
Inactive
Homestead Status
Inactive
Farmstead Status
Inactive
Lerta Amount
0.00
Lerta Expiration Year
2025
Residential Data
Card 1
Style
OLD STYLE
Basement
FULL
Year Built
1892
Exterior Wall
FRAME
Total Living Area
3899
Full Baths
3
Half Baths
0
Fuel Type
GAS
Heating
CENTRAL
Heating System
FORCED AIR
Stories
2.0
Total Bedrooms
5
Total Family Rooms
0
Total Rooms
12
Fireplaces
0
Other Buildings & Yards
No OBY Data Found
Sales History
Sale Date
Type
Price
Book / Page
Other Info
6/2/2021
LAND & BUILDING
130000
2021 / 013869
SPECIAL WARRANTY DEED
9/19/2018
LAND & BUILDING
0
2018 / 019286
SPECIAL WARRANTY DEED
6/26/1996
LAND & BUILDING
49900
447 / 1255
6/26/1996
0
0447 / 1255
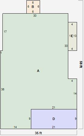
Parcel Sketches
Residential Card 1
A
MAIN
1529 square feet
B
EFP ENCL FRAME PORCH
36 square feet
C
EFP ENCL FRAME PORCH
52 square feet
D
OFP OPEN FRAME PORCH WDDCK WOOD DECKS
189 square feet
Parcel Images
Please note:
this tab is for informational purposes only and may not show all delinquencies, see the Taxes tab for more accurate delinquent taxes due.