Elected Officials
Courts
Departments
Initiatives
Open Government
About
Login / Register
Home
/
Property & Tax Records
/
Property Records
/
Property & Tax Search
/
Parcel Profile
/
Print View
Search for Another Parcel
Parcel Profile
Historical Card
Sketches
Photos
Tax Map
Taxes
Print View
Print This Page
Address: 442 E 5 ST
Parcel: 14010014023500
Parcel Profile
Address
442 | E | 5 | ST
Street Status
PAVED | ALLEY
School District
CITY OF ERIE SCHOOL
Acreage
0.1460
Classification
R
Land Use Code
SINGLE FAMILY
Legal Description
442 E 5 ST 40 X 159
Square Feet
1976
Topo
LEVEL
Utility
ALL PUBLIC
Zoning
Please contact your municipal zoning officer
Deed Book
1304
Deed Page
0844
2025 Tax Values
Land Value / Taxable
7,700 / 7,700.00
Building Value / Taxable
28,600 / 28,600.00
Total Value / Taxable
36,300 / 36,300.00
Clean & Green
Inactive
Homestead Status
Inactive
Farmstead Status
Inactive
Lerta Amount
0
Lerta Expiration Year
0
Residential Data
Card 1
Style
CONVENTIONAL
Basement
PART
Year Built
1882
Exterior Wall
ALUMINUM/VINYL
Total Living Area
1976
Full Baths
1
Half Baths
1
Fuel Type
GAS
Heating
CENTRAL
Heating System
FORCED AIR
Stories
2.0
Total Bedrooms
4
Total Family Rooms
0
Total Rooms
9
Fireplaces
0
Other Buildings & Yards
Description
Built
Width
Length
Area
FRAME UTILITY SHED
1990
6
8
48
Sales History
Sale Date
Type
Price
Book / Page
Other Info
2/3/2006
LAND & BUILDING
42000
1304 / 0844
DEED
2/16/1961
0
0833 / 0324
2/16/1961
LAND & BUILDING
7200
833 / 324
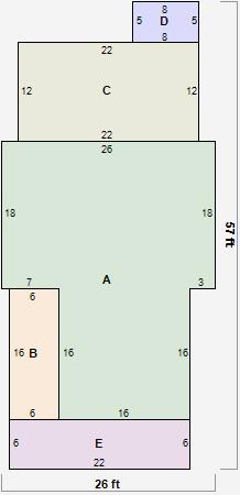
Parcel Sketches
Residential Card 1
A
MAIN
724 square feet
B
EFP ENCL FRAME PORCH
96 square feet
C
1S FR ONE STORY FRAME 1S FR ONE STORY FRAME
264 square feet
D
EFP ENCL FRAME PORCH
40 square feet
E
OMP OPEN MASONRY PORCH
132 square feet
Parcel Images