Elected Officials
Courts
Departments
Initiatives
Open Government
About
Login / Register
Home
/
Property & Tax Records
/
Property Records
/
Property & Tax Search
/
Parcel Profile
/
Print View
Search for Another Parcel
Parcel Profile
Historical Card
Sketches
Photos
Tax Map
Taxes
Print View
Print This Page
Address: 512 E 8 ST
Parcel: 14010016012900
Parcel Profile
Address
512 | E | 8 | ST
Street Status
PAVED | SIDEWALK
School District
CITY OF ERIE SCHOOL
Acreage
0.1446
Classification
R
Land Use Code
TWO FAMILY
Legal Description
512 E 8 ST 40 X 157.5
Square Feet
1888
Topo
LEVEL
Utility
ALL PUBLIC
Zoning
Please contact your municipal zoning officer
Deed Book
2018
Deed Page
004925
2026 Tax Values
Land Value / Taxable
7,700 / 7,700.00
Building Value / Taxable
13,100 / 13,100.00
Total Value / Taxable
20,800 / 20,800.00
Clean & Green
Inactive
Homestead Status
Inactive
Farmstead Status
Inactive
Lerta Amount
0
Lerta Expiration Year
0
Residential Data
Card 1
Style
OLD STYLE
Basement
FULL
Year Built
1975
Exterior Wall
ALUMINUM/VINYL
Total Living Area
1888
Full Baths
2
Half Baths
0
Fuel Type
GAS
Heating
CENTRAL
Heating System
FORCED AIR
Stories
2.0
Total Bedrooms
4
Total Family Rooms
2
Total Rooms
10
Fireplaces
0
Other Buildings & Yards
Description
Built
Width
Length
Area
FRAME OR CB DETACHED GARAGE
1953
24
26
624
Sales History
Sale Date
Type
Price
Book / Page
Other Info
3/16/2018
LAND & BUILDING
34500
2018 / 004925
FIDUCIARY DEED
6/7/2017
LAND & BUILDING
41000
2017 / 011653
SPECIAL WARRANTY DEED
5/23/2013
LAND & BUILDING
0
2013 / 012813
DEED
2/25/2005
LAND & BUILDING
0
1213 / 0488
DEED
2/22/2005
LAND & BUILDING
15340
1212 / 0490
WARRANTY/SURVIVORSHIP DEED
7/7/2003
LAND & BUILDING
0
1032 / 536
SHERIFF'S DED
12/11/1998
LAND & BUILDING
14000
605 / 1485
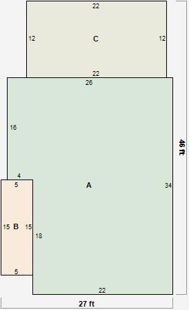
Parcel Sketches
Residential Card 1
A
MAIN
812 square feet
B
OFP OPEN FRAME PORCH OFP OPEN FRAME PORCH
75 square feet
C
1S FR ONE STORY FRAME
264 square feet
Parcel Images
Please note:
this tab is for informational purposes only and may not show all delinquencies, see the Taxes tab for more accurate delinquent taxes due.