Elected Officials
Courts
Departments
Initiatives
Open Government
About
Login / Register
Home
/
Property & Tax Records
/
Property Records
/
Property & Tax Search
/
Parcel Profile
/
Print View
Search for Another Parcel
Parcel Profile
Historical Card
Sketches
Photos
Tax Map
Taxes
Print View
Print This Page
Address: 626 ASH ST
Parcel: 14010016020100
Parcel Profile
Address
626 | ASH | ST
Street Status
PAVED | SIDEWALK
School District
CITY OF ERIE SCHOOL
Acreage
0.0955
Classification
R
Land Use Code
SINGLE FAMILY
Legal Description
626 ASH ST 99 X 65 IRR
Square Feet
1316
Topo
LEVEL
Utility
ALL PUBLIC
Zoning
Please contact your municipal zoning officer
Deed Book
2015
Deed Page
025490
2026 Tax Values
Land Value / Taxable
7,000 / 7,000.00
Building Value / Taxable
7,300 / 7,300.00
Total Value / Taxable
14,300 / 14,300.00
Clean & Green
Inactive
Homestead Status
Inactive
Farmstead Status
Inactive
Lerta Amount
0
Lerta Expiration Year
0
Residential Data
Card 1
Style
OLD STYLE
Basement
FULL
Year Built
1982
Exterior Wall
ALUMINUM/VINYL
Total Living Area
1316
Full Baths
1
Half Baths
0
Fuel Type
GAS
Heating
CENTRAL
Heating System
FORCED AIR
Stories
2.0
Total Bedrooms
2
Total Family Rooms
0
Total Rooms
7
Fireplaces
0
Other Buildings & Yards
No OBY Data Found
Sales History
Sale Date
Type
Price
Book / Page
Other Info
11/16/2015
LAND & BUILDING
0
2015 / 025490
SPECIAL WARRANTY DEED
11/12/2015
LAND & BUILDING
0
2015 / 025247
SPECIAL WARRANTY DEED
3/2/1984
LAND & BUILDING
0
1527 / 274
AFFIDAVIT
3/2/1984
0
1527 / 0274
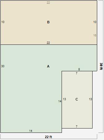
Parcel Sketches
Residential Card 1
A
MAIN
548 square feet
B
1S FR ONE STORY FRAME
220 square feet
C
OFP OPEN FRAME PORCH
91 square feet
Parcel Images
Please note:
this tab is for informational purposes only and may not show all delinquencies, see the Taxes tab for more accurate delinquent taxes due.