Elected Officials
Courts
Departments
Initiatives
Open Government
About
Login / Register
Home
/
Property & Tax Records
/
Property Records
/
Property & Tax Search
/
Parcel Profile
/
Print View
Search for Another Parcel
Parcel Profile
Historical Card
Sketches
Photos
Tax Map
Taxes
Print View
Print This Page
Address: 560 E 7 ST
Parcel: 14010016024400
Parcel Profile
Address
560 | E | 7 | ST
Street Status
PAVED | SIDEWALK
School District
CITY OF ERIE SCHOOL
Acreage
0.0522
Classification
R
Land Use Code
SINGLE FAMILY
Legal Description
560 E 7 ST 35 X 65
Square Feet
1092
Topo
LEVEL
Utility
ALL PUBLIC
Zoning
Please contact your municipal zoning officer
Deed Book
2021
Deed Page
022242
2026 Tax Values
Land Value / Taxable
6,100 / 6,100.00
Building Value / Taxable
18,100 / 18,100.00
Total Value / Taxable
24,200 / 24,200.00
Clean & Green
Inactive
Homestead Status
Inactive
Farmstead Status
Inactive
Lerta Amount
0
Lerta Expiration Year
0
Residential Data
Card 1
Style
OLD STYLE
Basement
FULL
Year Built
1892
Exterior Wall
ALUMINUM/VINYL
Total Living Area
1092
Full Baths
1
Half Baths
0
Fuel Type
GAS
Heating
CENTRAL
Heating System
FORCED AIR
Stories
2.0
Total Bedrooms
3
Total Family Rooms
1
Total Rooms
7
Fireplaces
0
Other Buildings & Yards
Description
Built
Width
Length
Area
FRAME OR CB DETACHED GARAGE
1900
14
24
336
Sales History
Sale Date
Type
Price
Book / Page
Other Info
8/19/2021
LAND & BUILDING
5000
2021 / 022242
QUIT CLAIM DEED
8/7/2020
LAND & BUILDING
5000
2020 / 015225
SPECIAL WARRANTY DEED
3/11/2009
LAND & BUILDING
0
1548 / 0228
CORPORATE DEED
9/30/2008
LAND & BUILDING
0
1523 / 0877
DEED
5/10/2007
LAND & BUILDING
0
1414 / 2257
SHERIFF'S DED
3/6/2002
LAND & BUILDING
25000
859 / 1046
11/3/2000
LAND & BUILDING
10000
736 / 426
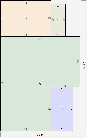
Parcel Sketches
Residential Card 1
A
MAIN
476 square feet
B
1S FR ONE STORY FRAME
140 square feet
C
EFP ENCL FRAME PORCH
36 square feet
D
EFP ENCL FRAME PORCH
72 square feet
Parcel Images
Please note:
this tab is for informational purposes only and may not show all delinquencies, see the Taxes tab for more accurate delinquent taxes due.