Elected Officials
Courts
Departments
Initiatives
Open Government
About
Login / Register
Home
/
Property & Tax Records
/
Property Records
/
Property & Tax Search
/
Parcel Profile
/
Print View
Search for Another Parcel
Parcel Profile
Historical Card
Sketches
Photos
Tax Map
Taxes
Print View
Print This Page
Address: 514 E 5 ST
Parcel: 14010017022900
Parcel Profile
Address
514 | E | 5 | ST
Street Status
PAVED | SIDEWALK
School District
CITY OF ERIE SCHOOL
Acreage
0.1460
Classification
R
Land Use Code
SINGLE FAMILY
Legal Description
514 E 5 ST 40 X 159
Square Feet
1154
Topo
LEVEL
Utility
ALL PUBLIC
Zoning
Please contact your municipal zoning officer
Deed Book
2024
Deed Page
002448
2026 Tax Values
Land Value / Taxable
7,700 / 7,700.00
Building Value / Taxable
26,400 / 26,400.00
Total Value / Taxable
34,100 / 34,100.00
Clean & Green
Inactive
Homestead Status
Inactive
Farmstead Status
Inactive
Lerta Amount
0
Lerta Expiration Year
0
Residential Data
Card 1
Style
CAPE
Basement
FULL
Year Built
1952
Exterior Wall
BRICK
Total Living Area
1154
Full Baths
1
Half Baths
1
Fuel Type
GAS
Heating
CENTRAL
Heating System
FORCED AIR
Stories
1.0
Total Bedrooms
3
Total Family Rooms
0
Total Rooms
6
Fireplaces
0
Other Buildings & Yards
No OBY Data Found
Sales History
Sale Date
Type
Price
Book / Page
Other Info
2/16/2024
LAND & BUILDING
55514
2024 / 002448
SPECIAL WARRANTY DEED
10/9/2013
LAND & BUILDING
44000
2013 / 026873
DEED
7/5/2000
LAND & BUILDING
38000
713 / 702
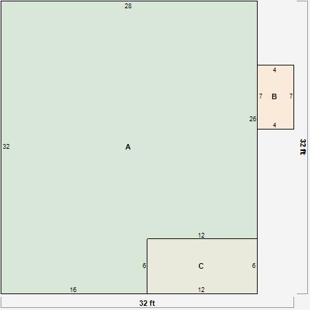
Parcel Sketches
Residential Card 1
A
MAIN
824 square feet
B
OMP OPEN MASONRY PORCH
28 square feet
C
OMP OPEN MASONRY PORCH
72 square feet
Parcel Images
Please note:
this tab is for informational purposes only and may not show all delinquencies, see the Taxes tab for more accurate delinquent taxes due.