Elected Officials
Courts
Departments
Initiatives
Open Government
About
Login / Register
Home
/
Property & Tax Records
/
Property Records
/
Property & Tax Search
/
Parcel Profile
/
Print View
Search for Another Parcel
Parcel Profile
Historical Card
Sketches
Photos
Tax Map
Taxes
Print View
Print This Page
Address: 550 E 5 ST
Parcel: 14010017023800
Parcel Profile
Address
550 | E | 5 | ST
Street Status
PAVED | SIDEWALK
School District
CITY OF ERIE SCHOOL
Acreage
0.0606
Classification
R
Land Use Code
TWO FAMILY
Legal Description
550 E 5 ST 40 X 66
Square Feet
1409
Topo
LEVEL
Utility
ALL PUBLIC
Zoning
Please contact your municipal zoning officer
Deed Book
2024
Deed Page
010635
2025 Tax Values
Land Value / Taxable
6,300 / 6,300.00
Building Value / Taxable
17,500 / 17,500.00
Total Value / Taxable
23,800 / 23,800.00
Clean & Green
Inactive
Homestead Status
Inactive
Farmstead Status
Inactive
Lerta Amount
0
Lerta Expiration Year
0
Residential Data
Card 1
Style
OLD STYLE
Basement
FULL
Year Built
1887
Exterior Wall
ALUMINUM/VINYL
Total Living Area
1409
Full Baths
2
Half Baths
0
Fuel Type
GAS
Heating
CENTRAL
Heating System
FORCED AIR
Stories
1.5
Total Bedrooms
4
Total Family Rooms
0
Total Rooms
8
Fireplaces
0
Other Buildings & Yards
No OBY Data Found
Sales History
Sale Date
Type
Price
Book / Page
Other Info
7/10/2024
LAND & BUILDING
30000
2024 / 010635
SPECIAL WARRANTY DEED
9/1/2010
LAND & BUILDING
20000
2010 / 021503
WARRANTY/SURVIVORSHIP DEED
12/30/1986
LAND & BUILDING
18500
1663 / 255
12/30/1986
0
1663 / 0255
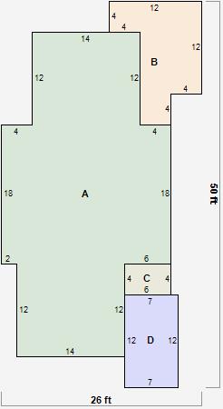
Parcel Sketches
Residential Card 1
A
MAIN
732 square feet
B
1S FR ONE STORY FRAME
128 square feet
C
EFP ENCL FRAME PORCH
24 square feet
D
OFP OPEN FRAME PORCH
84 square feet
Parcel Images