Elected Officials
Courts
Departments
Initiatives
Open Government
About
Login / Register
Home
/
Property & Tax Records
/
Property Records
/
Property & Tax Search
/
Parcel Profile
/
Print View
Search for Another Parcel
Parcel Profile
Historical Card
Sketches
Photos
Tax Map
Taxes
Print View
Print This Page
Address: 501 E 2 ST
Parcel: 14010018021300
Parcel Profile
Address
501 | E | 2 | ST
Street Status
PAVED | SIDEWALK
School District
CITY OF ERIE SCHOOL
Acreage
0.0735
Classification
R
Land Use Code
SINGLE FAMILY
Legal Description
501 E 2 ST 40 X 80
Square Feet
946
Topo
LEVEL
Utility
ALL PUBLIC
Zoning
Please contact your municipal zoning officer
Deed Book
2018
Deed Page
001914
2026 Tax Values
Land Value / Taxable
6,600 / 6,600.00
Building Value / Taxable
26,300 / 26,300.00
Total Value / Taxable
32,900 / 32,900.00
Clean & Green
Inactive
Homestead Status
Active
Farmstead Status
Inactive
Lerta Amount
0
Lerta Expiration Year
0
Residential Data
Card 1
Style
BUNGALOW
Basement
FULL
Year Built
1898
Exterior Wall
ALUMINUM/VINYL
Total Living Area
946
Full Baths
1
Half Baths
0
Fuel Type
GAS
Heating
CENTRAL
Heating System
FORCED AIR
Stories
1.0
Total Bedrooms
4
Total Family Rooms
0
Total Rooms
8
Fireplaces
0
Other Buildings & Yards
Description
Built
Width
Length
Area
FRAME UTILITY SHED
1910
10
12
120
Sales History
Sale Date
Type
Price
Book / Page
Other Info
1/31/2018
LAND & BUILDING
0
2018 / 001914
WARRANTY/SURVIVORSHIP DEED
8/21/1997
0
0515 / 0051
8/21/1997
LAND & BUILDING
42000
515 / 51
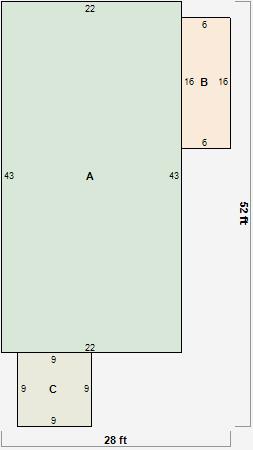
Parcel Sketches
Residential Card 1
A
MAIN
946 square feet
B
EFP ENCL FRAME PORCH
96 square feet
C
MA STOOP/TERR MAS STOOP
81 square feet
Parcel Images
Please note:
this tab is for informational purposes only and may not show all delinquencies, see the Taxes tab for more accurate delinquent taxes due.