Elected Officials
Courts
Departments
Initiatives
Open Government
About
Login / Register
Home
/
Property & Tax Records
/
Property Records
/
Property & Tax Search
/
Parcel Profile
/
Print View
Search for Another Parcel
Parcel Profile
Historical Card
Sketches
Photos
Tax Map
Taxes
Print View
Print This Page
Address: 219 WALLACE ST
Parcel: 14010018021600
Parcel Profile
Address
219 | WALLACE | ST
Street Status
PAVED | SIDEWALK
School District
CITY OF ERIE SCHOOL
Acreage
0.0680
Classification
R
Land Use Code
SINGLE FAMILY
Legal Description
219 WALLACE ST 37 X 80
Square Feet
851
Topo
LEVEL
Utility
ALL PUBLIC
Zoning
Please contact your municipal zoning officer
Deed Book
2017
Deed Page
014472
2025 Tax Values
Land Value / Taxable
6,500 / 6,500.00
Building Value / Taxable
16,200 / 16,200.00
Total Value / Taxable
22,700 / 22,700.00
Clean & Green
Inactive
Homestead Status
Inactive
Farmstead Status
Inactive
Lerta Amount
0
Lerta Expiration Year
0
Residential Data
Card 1
Style
BUNGALOW
Basement
FULL
Year Built
1898
Exterior Wall
ALUMINUM/VINYL
Total Living Area
851
Full Baths
1
Half Baths
0
Fuel Type
GAS
Heating
CENTRAL
Heating System
FORCED AIR
Stories
1.0
Total Bedrooms
2
Total Family Rooms
0
Total Rooms
5
Fireplaces
0
Other Buildings & Yards
No OBY Data Found
Sales History
Sale Date
Type
Price
Book / Page
Other Info
7/11/2017
LAND & BUILDING
0
2017 / 014472
DEED
8/14/1975
0
1166 / 0215
7/31/1961
LAND & BUILDING
0
843 / 158
AFFIDAVIT
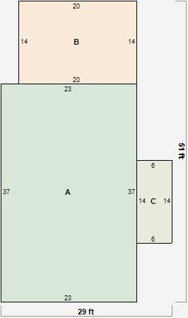
Parcel Sketches
Residential Card 1
A
MAIN
851 square feet
B
FR GR FRAME GARAGE
280 square feet
C
OFP OPEN FRAME PORCH
84 square feet
Parcel Images