Elected Officials
Courts
Departments
Initiatives
Open Government
About
Login / Register
Home
/
Property & Tax Records
/
Property Records
/
Property & Tax Search
/
Parcel Profile
/
Print View
Search for Another Parcel
Parcel Profile
Historical Card
Sketches
Photos
Tax Map
Taxes
Print View
Print This Page
Address: 538 E 3 ST
Parcel: 14010018022600
Parcel Profile
Address
538 | E | 3 | ST
Street Status
PAVED | SIDEWALK
School District
CITY OF ERIE SCHOOL
Acreage
0.1460
Classification
R
Land Use Code
SINGLE FAMILY
Legal Description
538 E 3 ST 40 X 159
Square Feet
1056
Topo
LEVEL
Utility
ALL PUBLIC
Zoning
Please contact your municipal zoning officer
Deed Book
0688
Deed Page
0913
2026 Tax Values
Land Value / Taxable
7,700 / 7,700.00
Building Value / Taxable
19,000 / 19,000.00
Total Value / Taxable
26,700 / 26,700.00
Clean & Green
Inactive
Homestead Status
Active
Farmstead Status
Inactive
Lerta Amount
0
Lerta Expiration Year
0
Residential Data
Card 1
Style
BUNGALOW
Basement
CRAWL
Year Built
1882
Exterior Wall
FRAME
Total Living Area
1056
Full Baths
1
Half Baths
0
Fuel Type
GAS
Heating
CENTRAL
Heating System
FORCED AIR
Stories
1.0
Total Bedrooms
4
Total Family Rooms
0
Total Rooms
7
Fireplaces
0
Other Buildings & Yards
No OBY Data Found
Sales History
Sale Date
Type
Price
Book / Page
Other Info
2/22/2000
LAND & BUILDING
32000
0688 / 0913
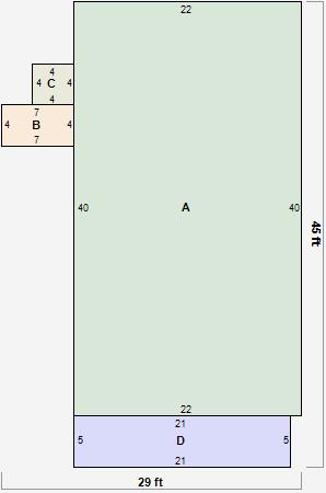
Parcel Sketches
Residential Card 1
A
MAIN
880 square feet
B
EFP ENCL FRAME PORCH
28 square feet
C
FR UT FRAME UTILITY BUILDING
16 square feet
D
OFP OPEN FRAME PORCH
105 square feet
Parcel Images
Please note:
this tab is for informational purposes only and may not show all delinquencies, see the Taxes tab for more accurate delinquent taxes due.