Elected Officials
Courts
Departments
Initiatives
Open Government
About
Login / Register
Home
/
Property & Tax Records
/
Property Records
/
Property & Tax Search
/
Parcel Profile
/
Print View
Search for Another Parcel
Parcel Profile
Historical Card
Sketches
Photos
Tax Map
Taxes
Print View
Print This Page
Address: 635 E 6 ST
Parcel: 14010019020800
Parcel Profile
Address
635 | E | 6 | ST
Street Status
PAVED | SIDEWALK
School District
CITY OF ERIE SCHOOL
Acreage
0.1326
Classification
R
Land Use Code
TWO FAMILY
Legal Description
635 E 6 ST 35 X 165
Square Feet
1801
Topo
LEVEL
Utility
ALL PUBLIC
Zoning
Please contact your municipal zoning officer
Deed Book
2024
Deed Page
006035
2026 Tax Values
Land Value / Taxable
7,600 / 7,600.00
Building Value / Taxable
27,500 / 27,500.00
Total Value / Taxable
35,100 / 35,100.00
Clean & Green
Inactive
Homestead Status
Inactive
Farmstead Status
Inactive
Lerta Amount
0
Lerta Expiration Year
0
Residential Data
Card 1
Style
OLD STYLE
Basement
FULL
Year Built
1890
Exterior Wall
ALUMINUM/VINYL
Total Living Area
1801
Full Baths
2
Half Baths
0
Fuel Type
GAS
Heating
CENTRAL
Heating System
FORCED AIR
Stories
2.0
Total Bedrooms
4
Total Family Rooms
0
Total Rooms
9
Fireplaces
0
Other Buildings & Yards
No OBY Data Found
Sales History
Sale Date
Type
Price
Book / Page
Other Info
4/23/2024
LAND & BUILDING
0
2024 / 006035
SPECIAL WARRANTY DEED
2/16/2016
LAND & BUILDING
268000
2016 / 003170
SPECIAL WARRANTY DEED
6/13/2011
LAND & BUILDING
21000
2011 / 013166
DEED
4/4/1966
0
937 / 5
4/4/1966
0
0937 / 0005
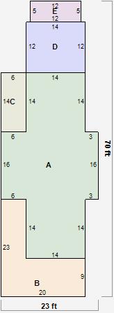
Parcel Sketches
Residential Card 1
A
MAIN
760 square feet
B
EMP ENCL MASONRY PORCH
264 square feet
C
UNFIN BSMT BASEMENT UNFINISHED FRBAY FRAME BAY
113 square feet
D
1S FR ONE STORY FRAME
168 square feet
E
EFP ENCL FRAME PORCH
60 square feet
Parcel Images
Please note:
this tab is for informational purposes only and may not show all delinquencies, see the Taxes tab for more accurate delinquent taxes due.