Elected Officials
Courts
Departments
Initiatives
Open Government
About
Login / Register
Home
/
Property & Tax Records
/
Property Records
/
Property & Tax Search
/
Parcel Profile
/
Print View
Search for Another Parcel
Parcel Profile
Historical Card
Sketches
Photos
Tax Map
Taxes
Print View
Print This Page
Address: 616 E 7 ST
Parcel: 14010019022300
Parcel Profile
Address
616 | E | 7 | ST
Street Status
PAVED | SIDEWALK
School District
CITY OF ERIE SCHOOL
Acreage
0.1515
Classification
R
Land Use Code
MULTIPLE DWELLINGS
Legal Description
616 E 7 ST 40 X 165
Square Feet
3505
Topo
LEVEL
Utility
ALL PUBLIC
Zoning
Please contact your municipal zoning officer
Deed Book
0725
Deed Page
1045
2026 Tax Values
Land Value / Taxable
7,700 / 7,700.00
Building Value / Taxable
43,900 / 43,900.00
Total Value / Taxable
51,600 / 51,600.00
Clean & Green
Inactive
Homestead Status
Active
Farmstead Status
Inactive
Lerta Amount
0
Lerta Expiration Year
0
Residential Data
Card 1
Style
CONVENTIONAL
Basement
FULL
Year Built
1892
Exterior Wall
ALUMINUM/VINYL
Total Living Area
2045
Full Baths
2
Half Baths
0
Fuel Type
GAS
Heating
CENTRAL
Heating System
FORCED AIR
Stories
1.5
Total Bedrooms
4
Total Family Rooms
0
Total Rooms
10
Fireplaces
0
Card 2
Style
OLD STYLE
Basement
FULL
Year Built
1892
Exterior Wall
ALUMINUM/VINYL
Total Living Area
1460
Full Baths
1
Half Baths
1
Fuel Type
GAS
Heating
CENTRAL
Heating System
FORCED AIR
Stories
2.0
Total Bedrooms
4
Total Family Rooms
0
Total Rooms
8
Fireplaces
0
Other Buildings & Yards
Description
Built
Width
Length
Area
FRAME OR CB DETACHED GARAGE
1950
12
16
192
Sales History
Sale Date
Type
Price
Book / Page
Other Info
9/8/2000
LAND & BUILDING
0
725 / 1045
AFFIDAVIT
9/8/2000
0
0725 / 1045
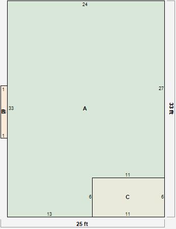
Parcel Sketches
Residential Card 1
A
MAIN
1132 square feet
B
1S FR ONE STORY FRAME
64 square feet
C
EFP ENCL FRAME PORCH
208 square feet
Residential Card 2
A
MAIN
726 square feet
B
FRBAY FRAME BAY
8 square feet
C
EFP ENCL FRAME PORCH
66 square feet
Parcel Images
Please note:
this tab is for informational purposes only and may not show all delinquencies, see the Taxes tab for more accurate delinquent taxes due.