Elected Officials
Courts
Departments
Initiatives
Open Government
About
Login / Register
Home
/
Property & Tax Records
/
Property Records
/
Property & Tax Search
/
Parcel Profile
/
Print View
Search for Another Parcel
Parcel Profile
Historical Card
Sketches
Photos
Tax Map
Taxes
Print View
Print This Page
Address: 618 E 7 ST
Parcel: 14010019022400
Parcel Profile
Address
618 | E | 7 | ST
Street Status
PAVED | SIDEWALK
School District
CITY OF ERIE SCHOOL
Acreage
0.1326
Classification
R
Land Use Code
TWO FAMILY
Legal Description
618 E 7 ST 35 X 165
Square Feet
2318
Topo
LEVEL
Utility
ALL PUBLIC
Zoning
Please contact your municipal zoning officer
Deed Book
0642
Deed Page
0723
2025 Tax Values
Land Value / Taxable
7,600 / 7,600.00
Building Value / Taxable
18,700 / 18,700.00
Total Value / Taxable
26,300 / 26,300.00
Clean & Green
Inactive
Homestead Status
Inactive
Farmstead Status
Inactive
Lerta Amount
0
Lerta Expiration Year
0
Residential Data
Card 1
Style
OLD STYLE
Basement
PART
Year Built
1887
Exterior Wall
ALUMINUM/VINYL
Total Living Area
2318
Full Baths
2
Half Baths
0
Fuel Type
GAS
Heating
CENTRAL
Heating System
FORCED AIR
Stories
2.0
Total Bedrooms
5
Total Family Rooms
0
Total Rooms
8
Fireplaces
0
Other Buildings & Yards
No OBY Data Found
Sales History
Sale Date
Type
Price
Book / Page
Other Info
6/10/1999
LAND & BUILDING
0
0642 / 0723
AFFIDAVIT
6/10/1999
0
0642 / 0723
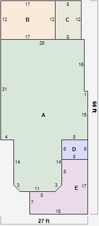
Parcel Sketches
Residential Card 1
A
MAIN
1057 square feet
B
1S FR ONE STORY FRAME
204 square feet
C
OFP OPEN FRAME PORCH
96 square feet
D
EFP ENCL FRAME PORCH
48 square feet
E
OFP OPEN FRAME PORCH
208 square feet
Parcel Images